Планировки 1, 2 и 3-х комнатных квартир Агрогородок Балашихинский район - Молния М

  На главную страницу «Молния - М» Строительная компания
ЗАО "Молния-М"

Балашиха, ул.9-я линия, дом 60

мкр-н Никольско-Архангельский
Новостройки в Железнодорожном
Новостройки в Балашихе
Новостройки в Подмосковье
Ипотека
ЗАО "Молния-М"
Балашиха, ул.9-я линия, дом 60

мкр-н Никольско-Архангельский

График работы: 8.00-17.00

Заказать звонок

525-56-56

звонок бесплатный
mail@molniam.ru

График работы: 8.00-17.00

Фундаментальные основы
для достойной жизни!

 
 
  о компании     услуги     жилая недвижимость     коммерческая недвижимость     покупателям     контакты  
 
главная  ---   Жилая недвижимость  ---   Квартиры в г. Железнодорожный, д. Черное, ул. Агрогородок д. 32  ---   Планировка
 

Жилая недвижимость
Квартиры в г. Щелково, мкр. Гагаринский, д.6Б
Квартиры в г. Щелково, ул. Чкаловская, д. 5
Квартиры в г. Электросталь, ул Захарченко, д.3
Квартиры в г. Электросталь, ул. Карла Маркса д.43/1;
Квартиры в г. Электросталь, ул. Захарченко д.5;
Квартиры в г. Железнодорожный, д. Черное, ул. Агрогородок д. 20
Квартиры в г. Железнодорожный, д. Черное, ул. Агрогородок д. 19
Квартиры в г. Железнодорожный, д. Черное, ул. Агрогородок д. 32
Недвижимость за рубежом
Хорватия

Одно, двух и трехкомнатные квартиры в Агрогородке - планировки

Типовые планировки квартир в доме по этажам

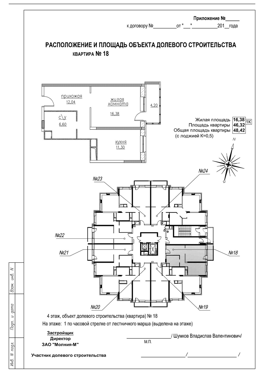
1 этаж 2 этаж с 3 по 5
этаж
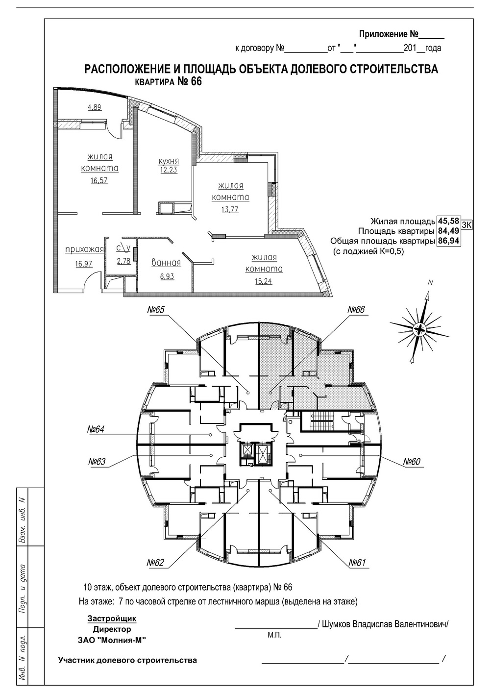
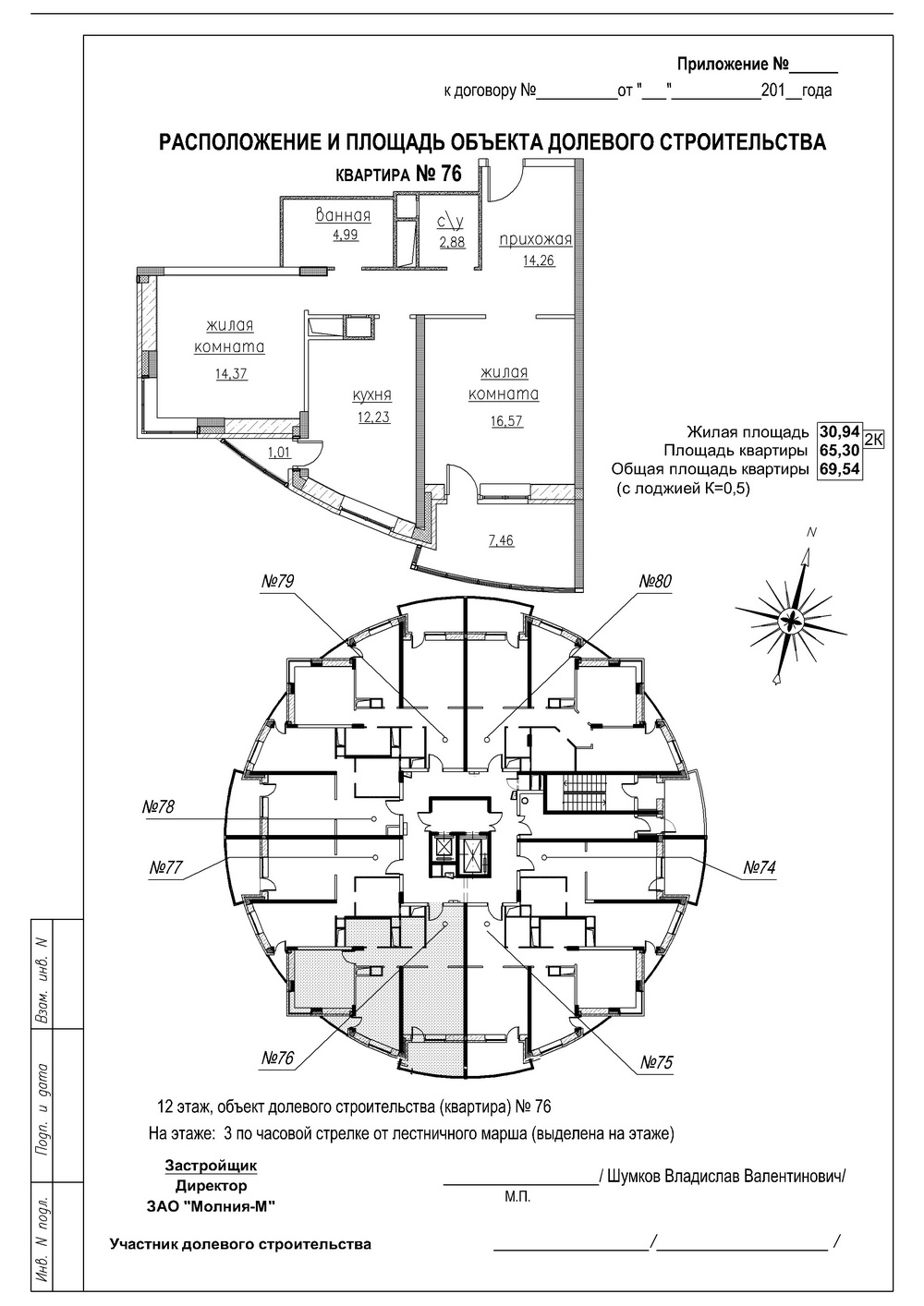
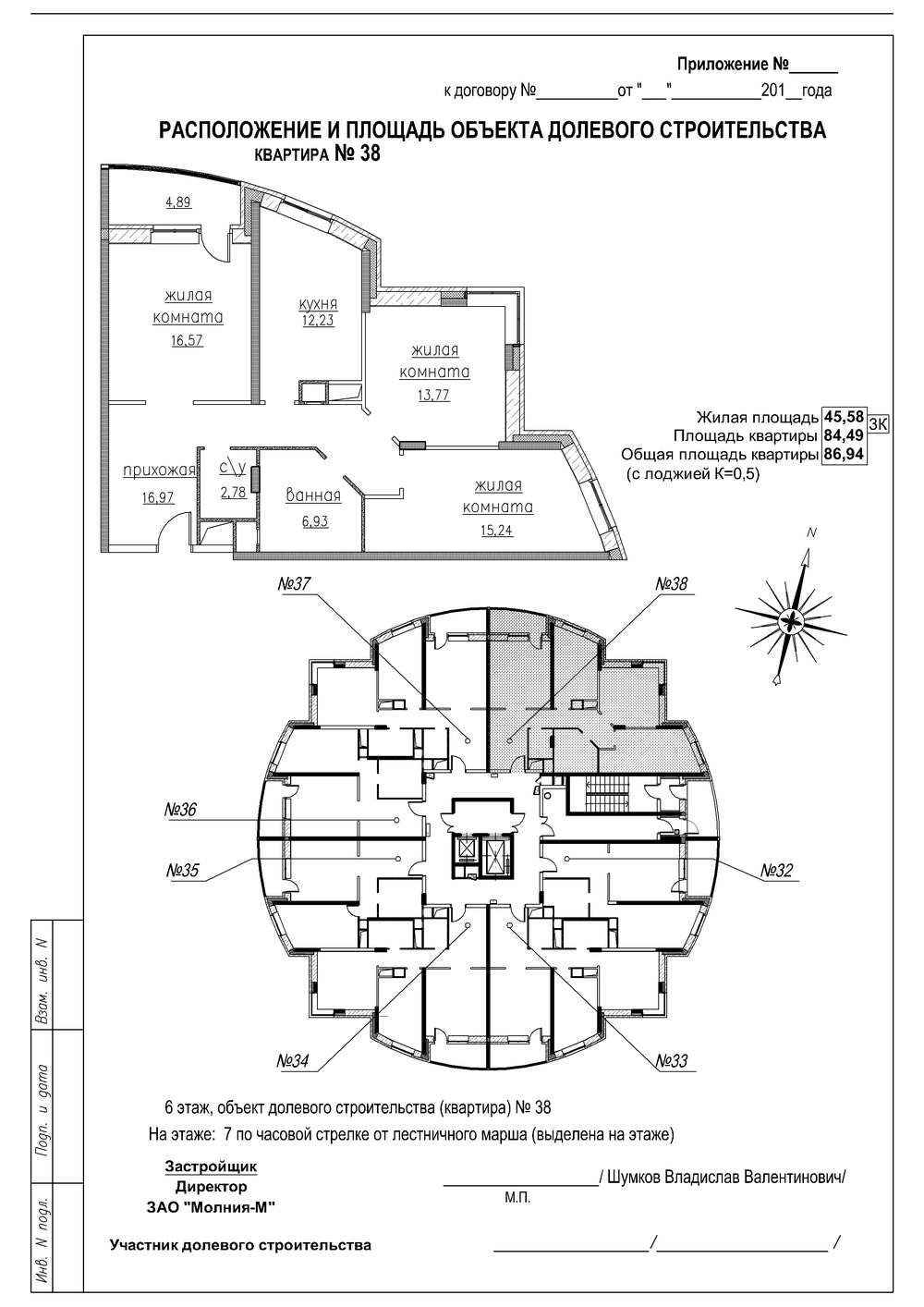
с 6 по 11, 17
этаж
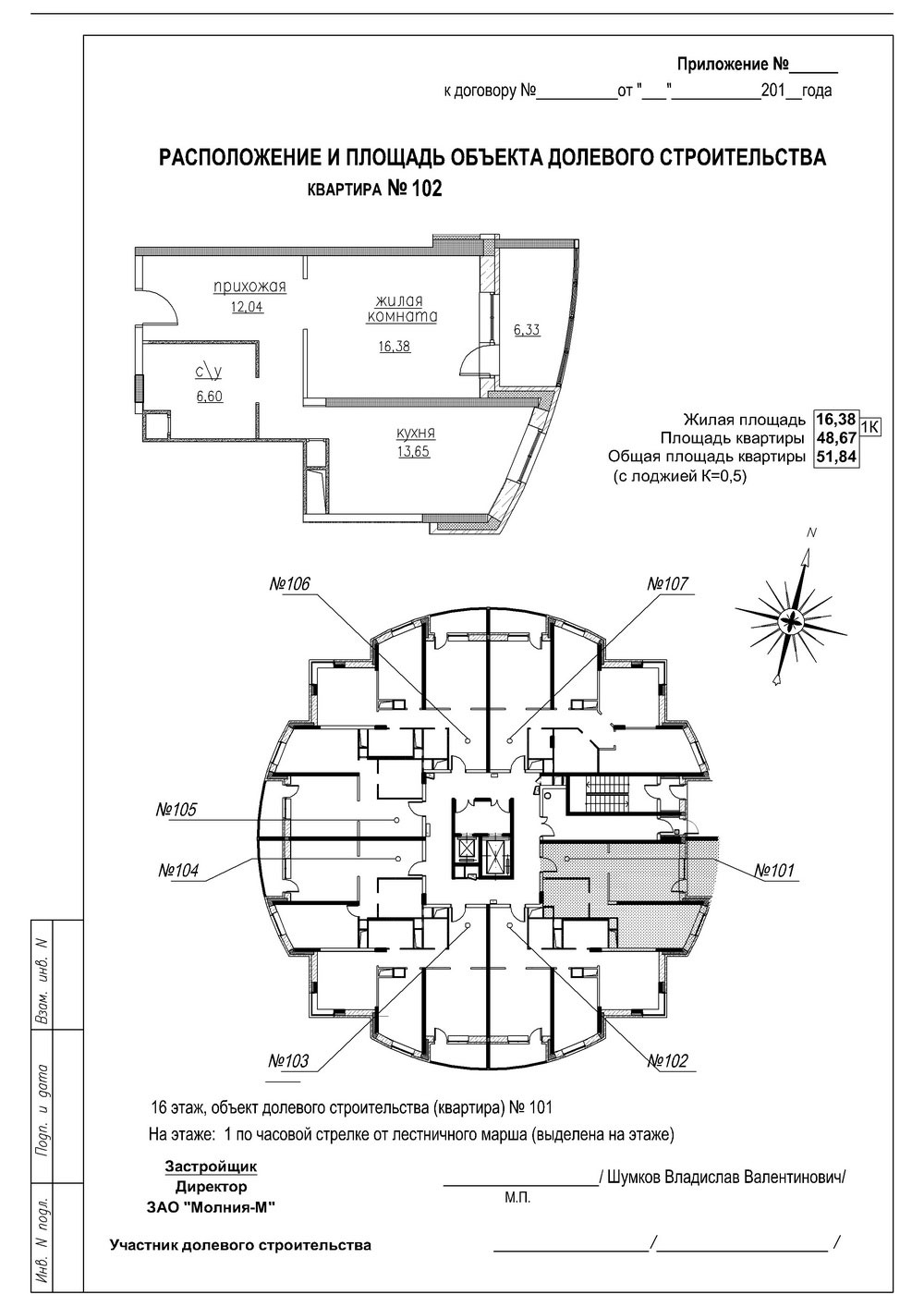
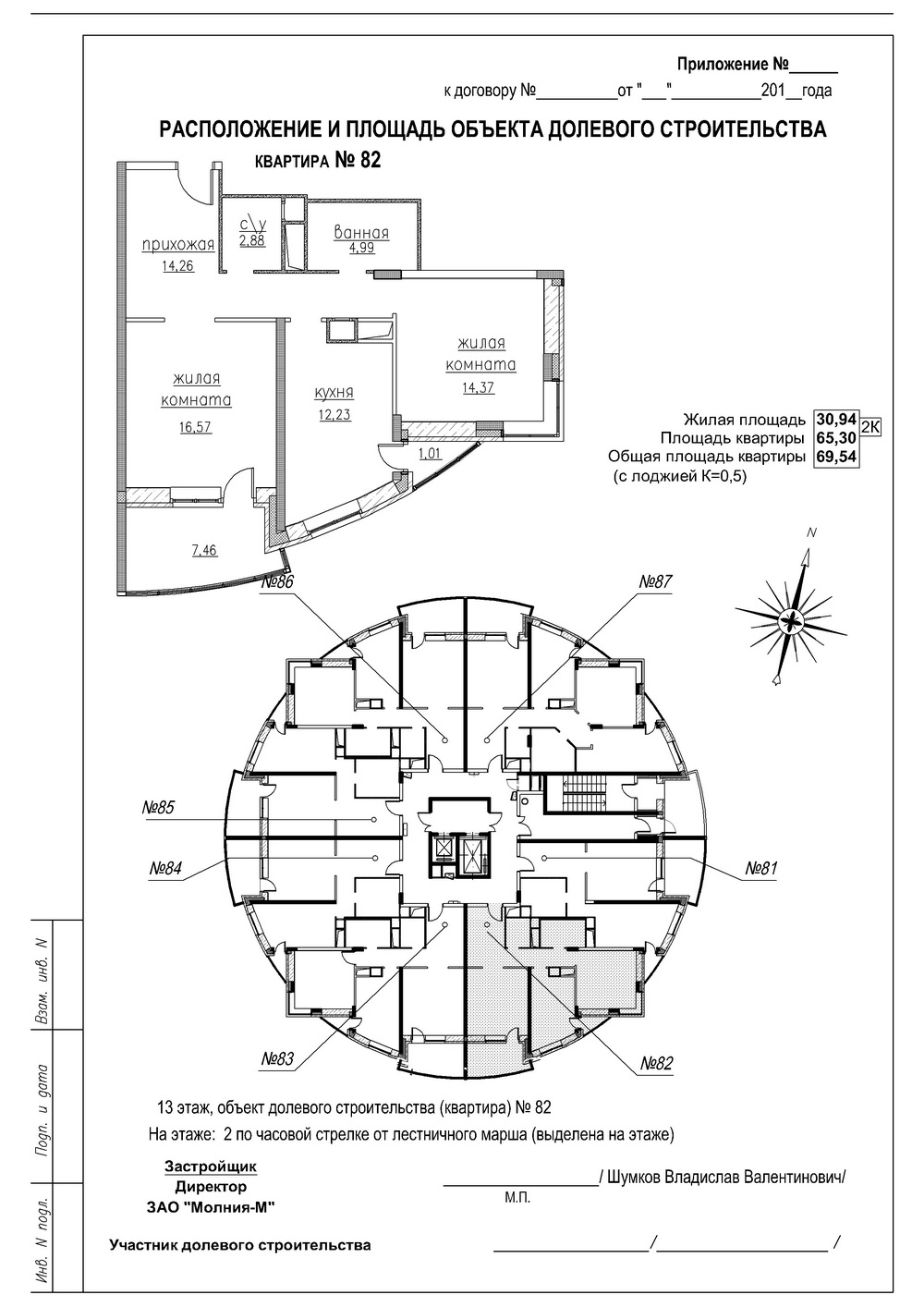
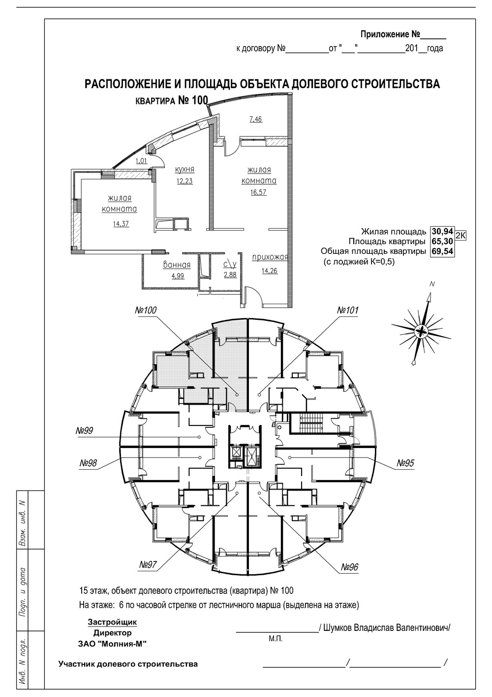
с 12 по 15
этаж
16 этаж


Типовые планировки квартир в доме

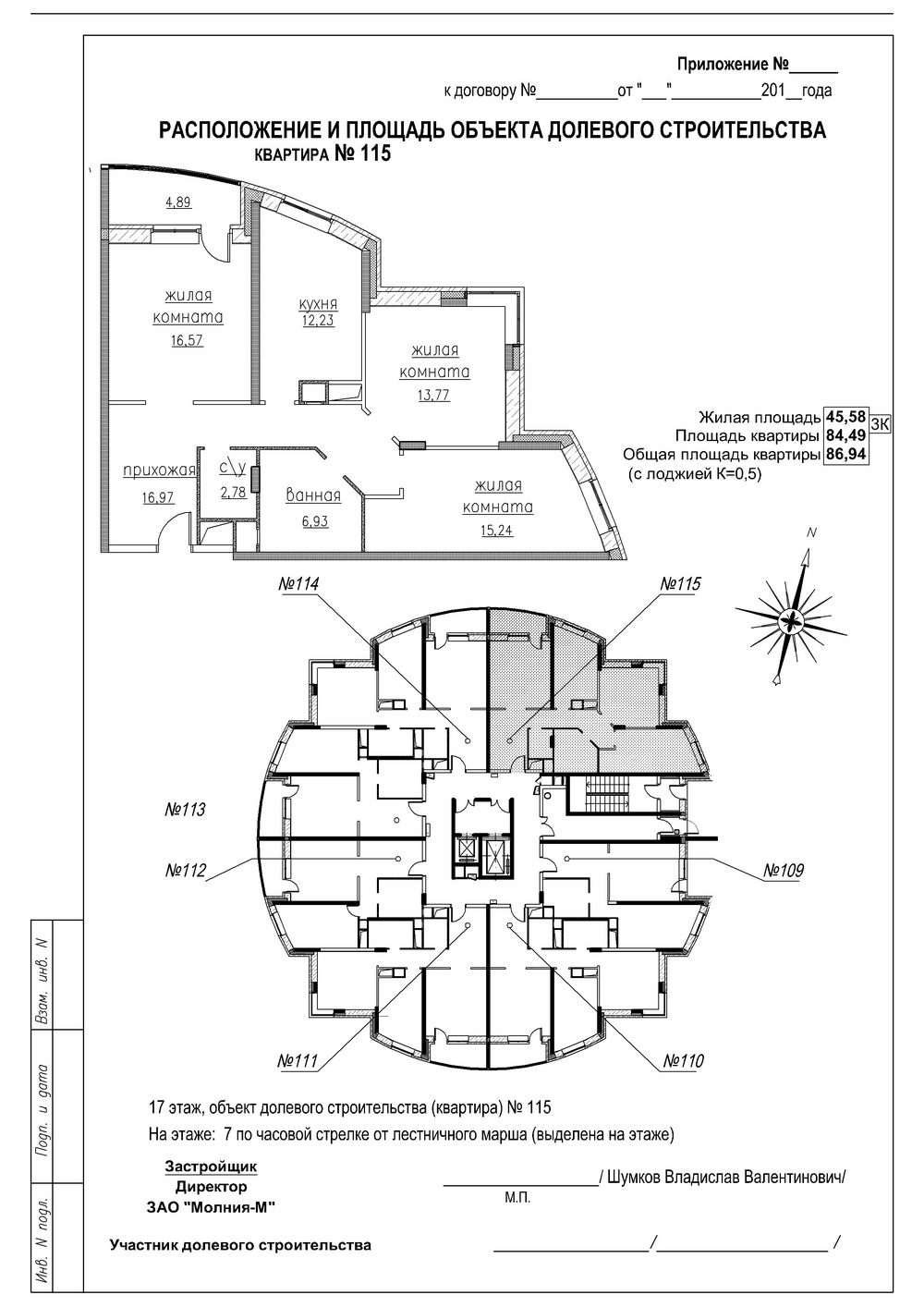
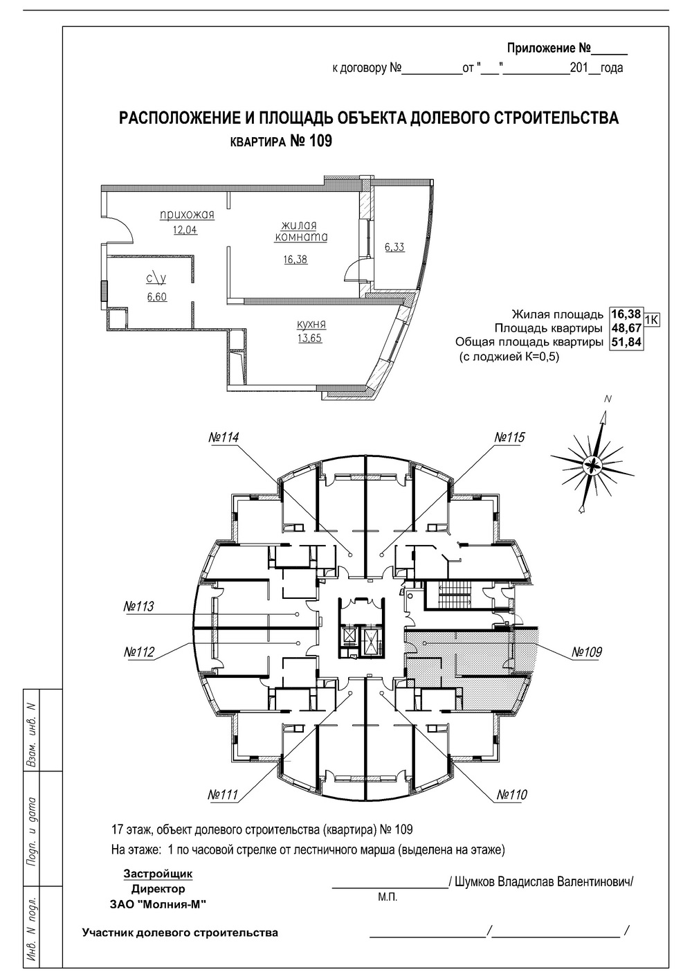
17 этаж 1 к
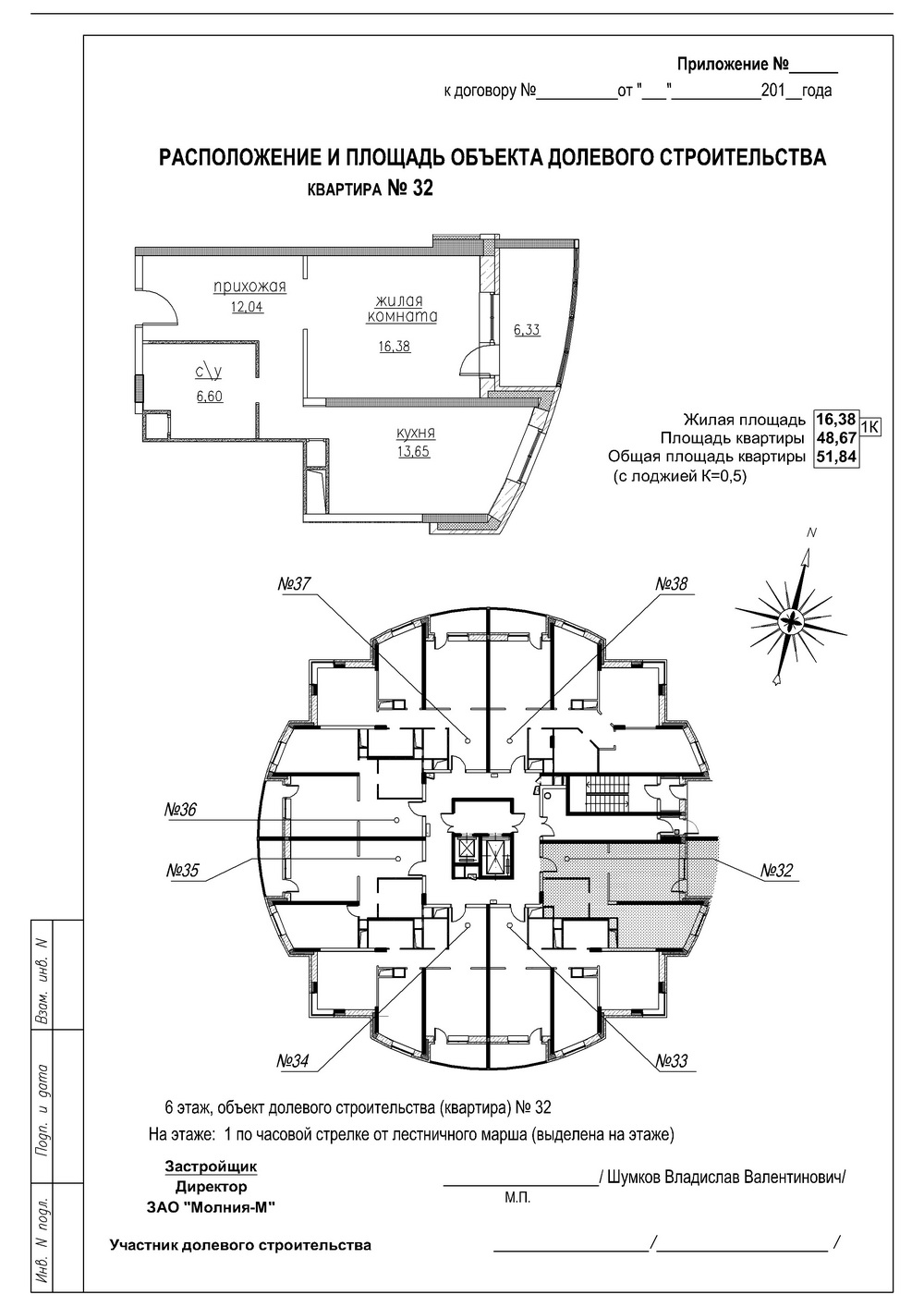
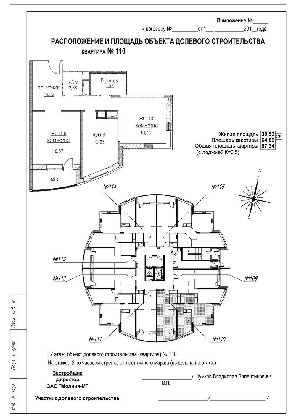
51,84 кв.м
кв №109
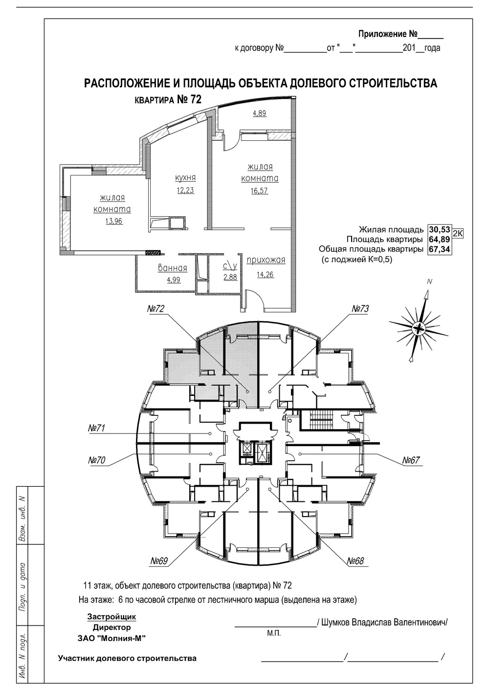
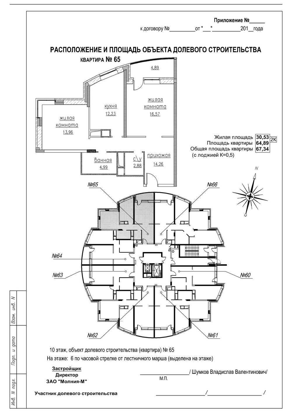
2 к
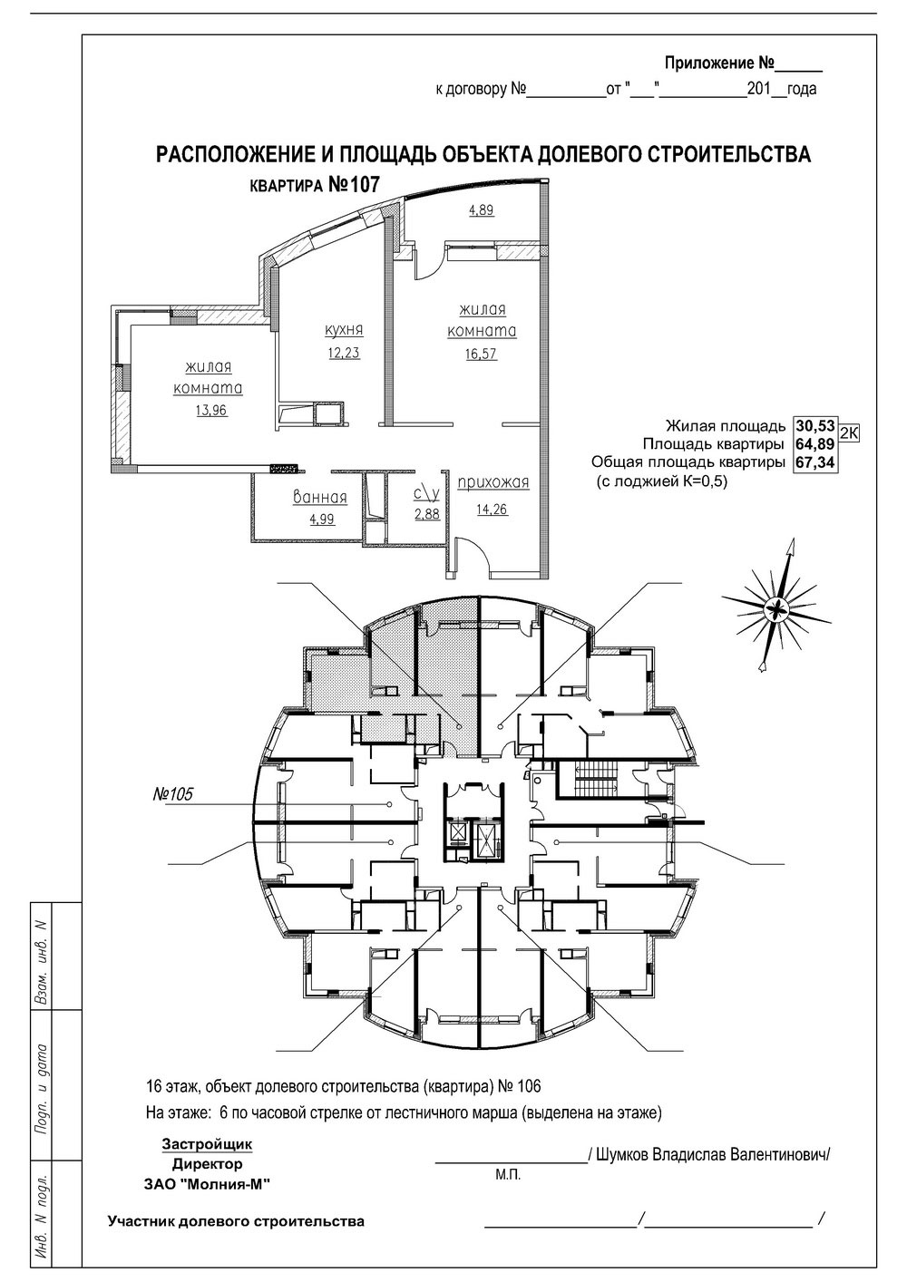
67,34 кв.м
кв №110
2 к
67,34 кв.м
кв №111
1 к
51,68 кв.м
кв №112
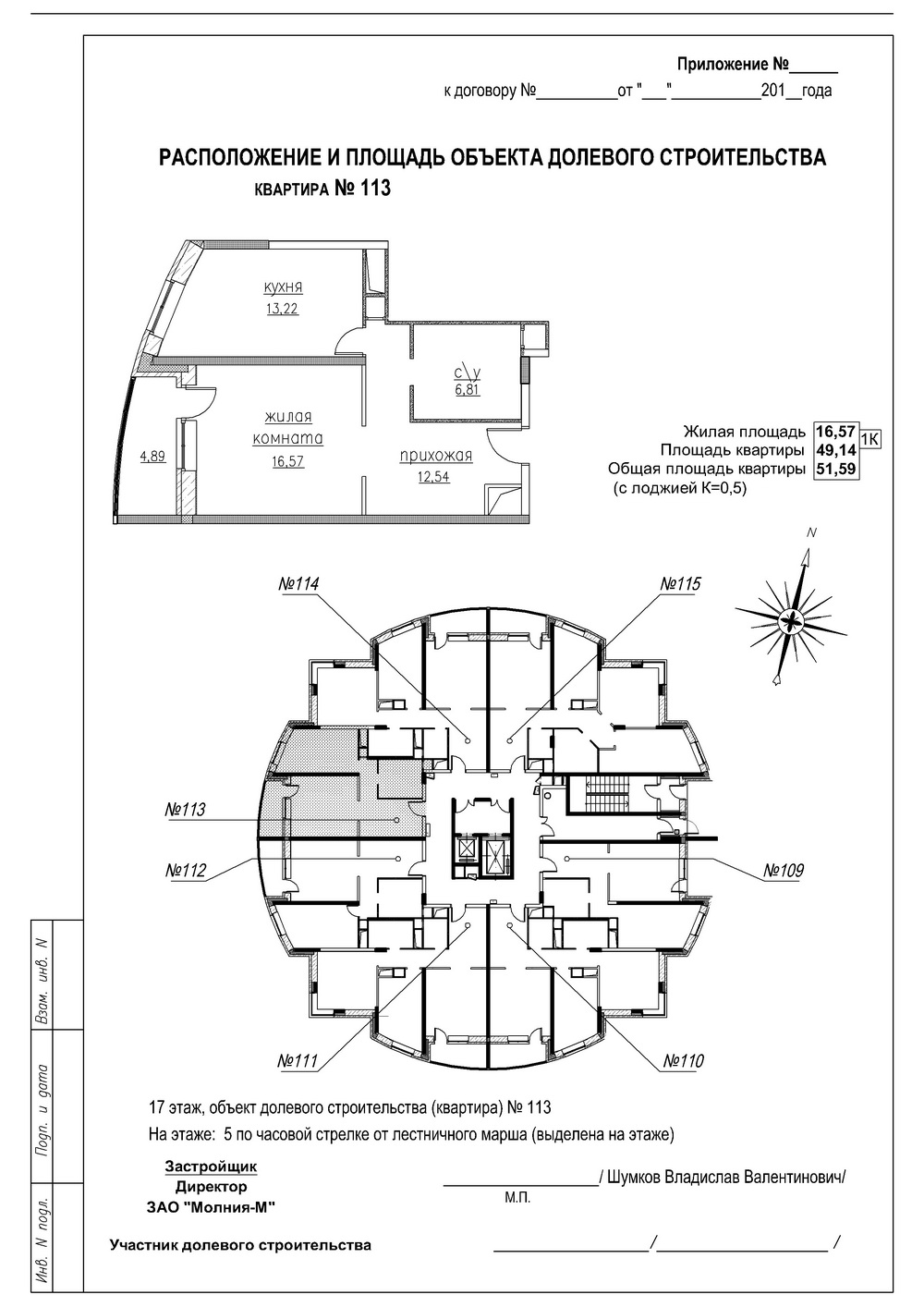
1 к
51,59 кв.м
кв №113
2 к
67,34 кв.м
кв №114
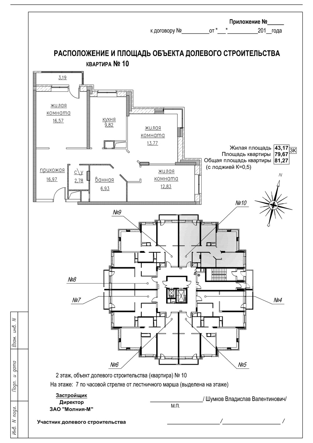
3 к
86,94 кв.м
кв №115
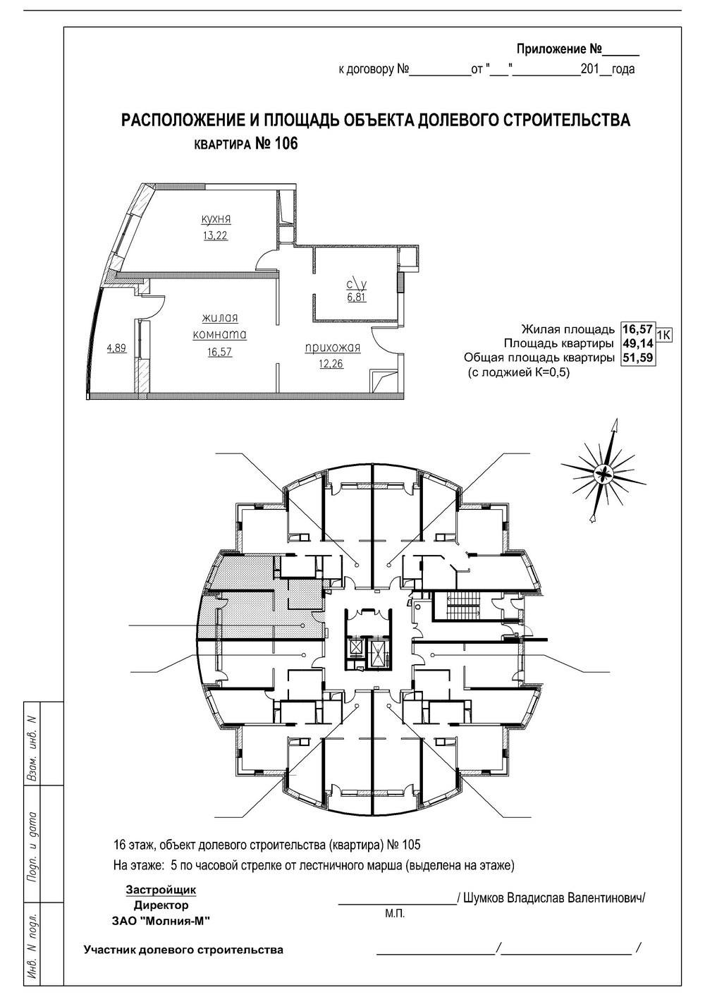
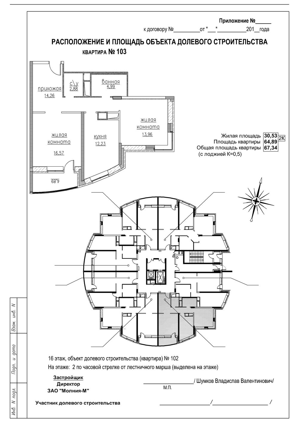
16 этаж 1 к
51,84 кв.м
кв №102
2 к
67,34 кв.м
кв №103
2 к
67,34 кв.м
кв №104
1 к
51,68 кв.м
кв №105
1 к
51,59 кв.м
кв №106
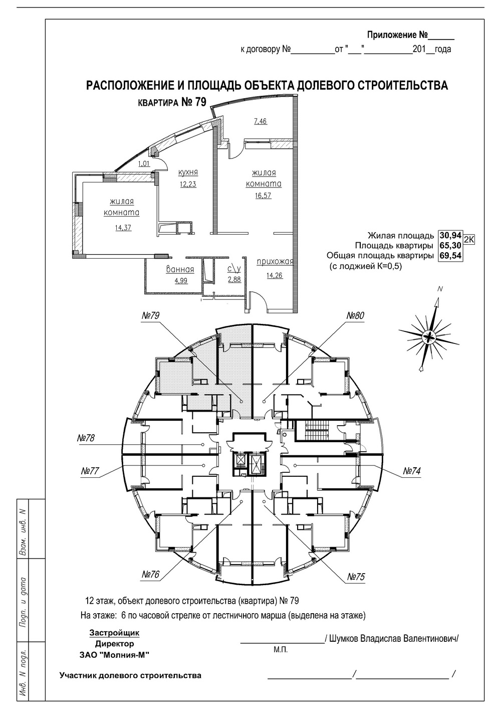
2 к
67,34 кв.м
кв №107
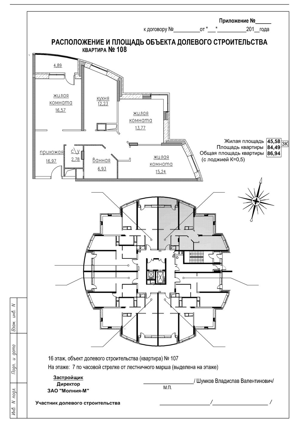
3 к
86,94 кв.м
кв №108
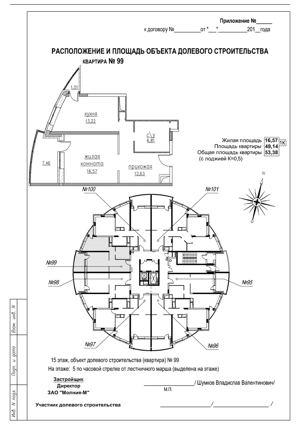
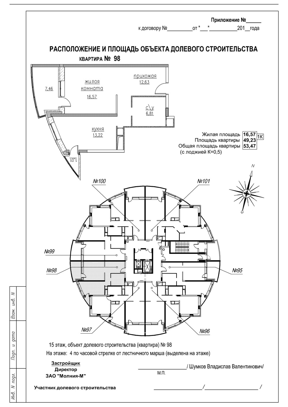
15 этаж 1 к
53,62 кв.м
кв №95
2 к
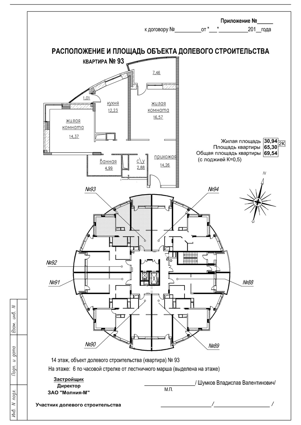
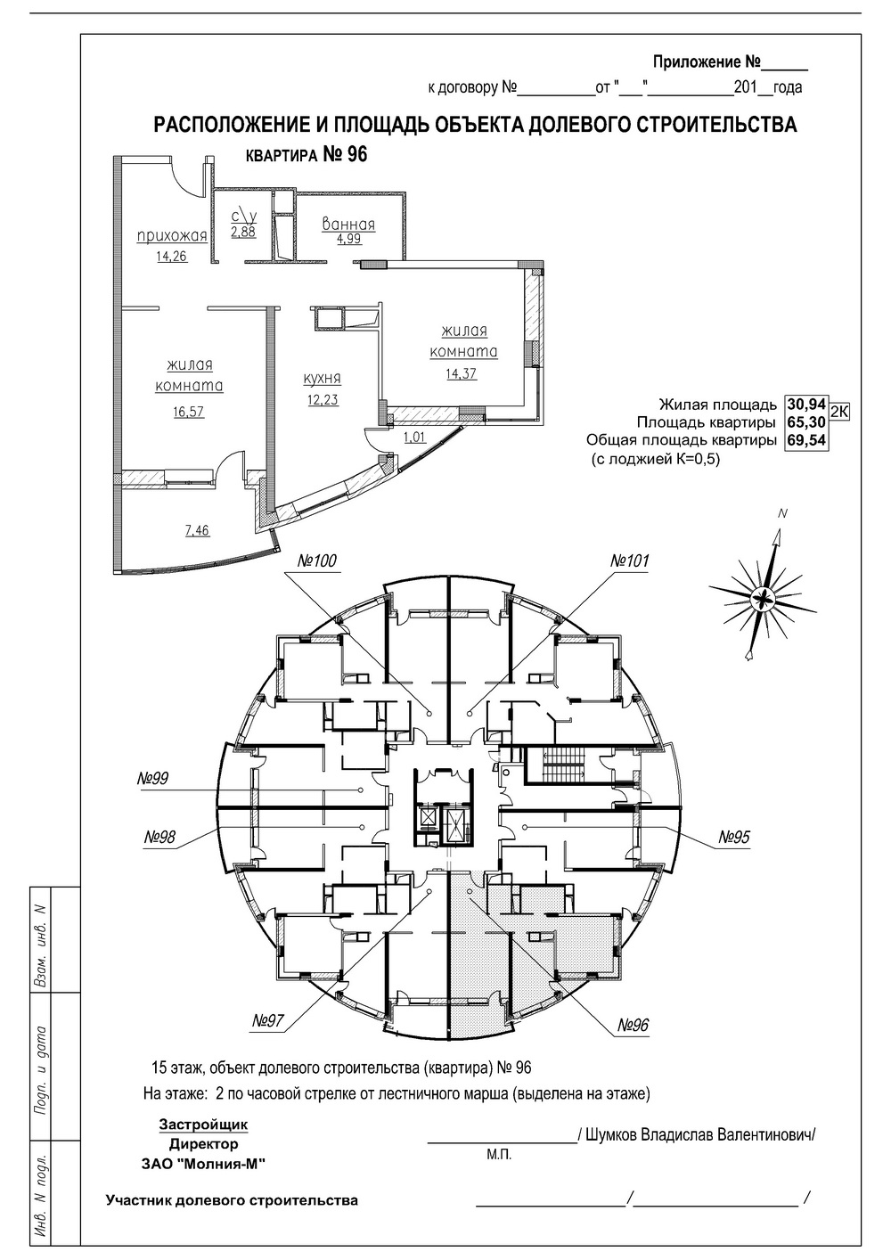
69,54 кв.м
кв №96
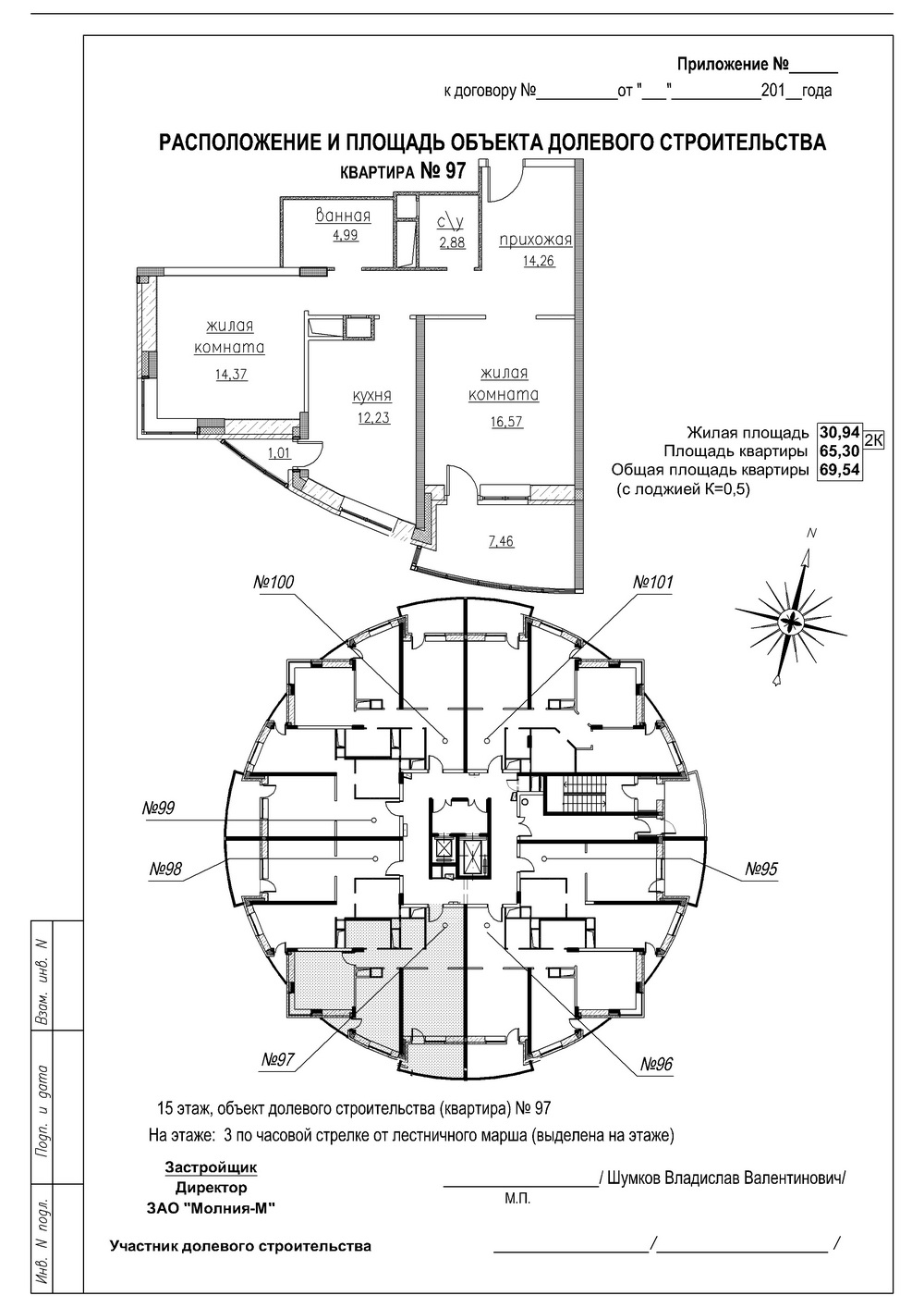
2 к
69,54 кв.м
кв №97
1 к
53,47 кв.м
кв №98
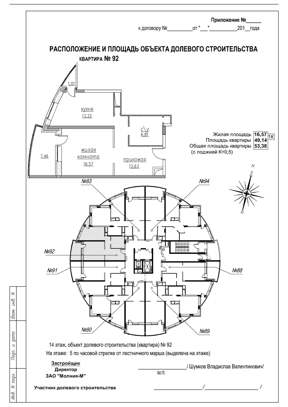
1 к
53,38 кв.м
кв №99
2 к
69,54 кв.м
кв №100
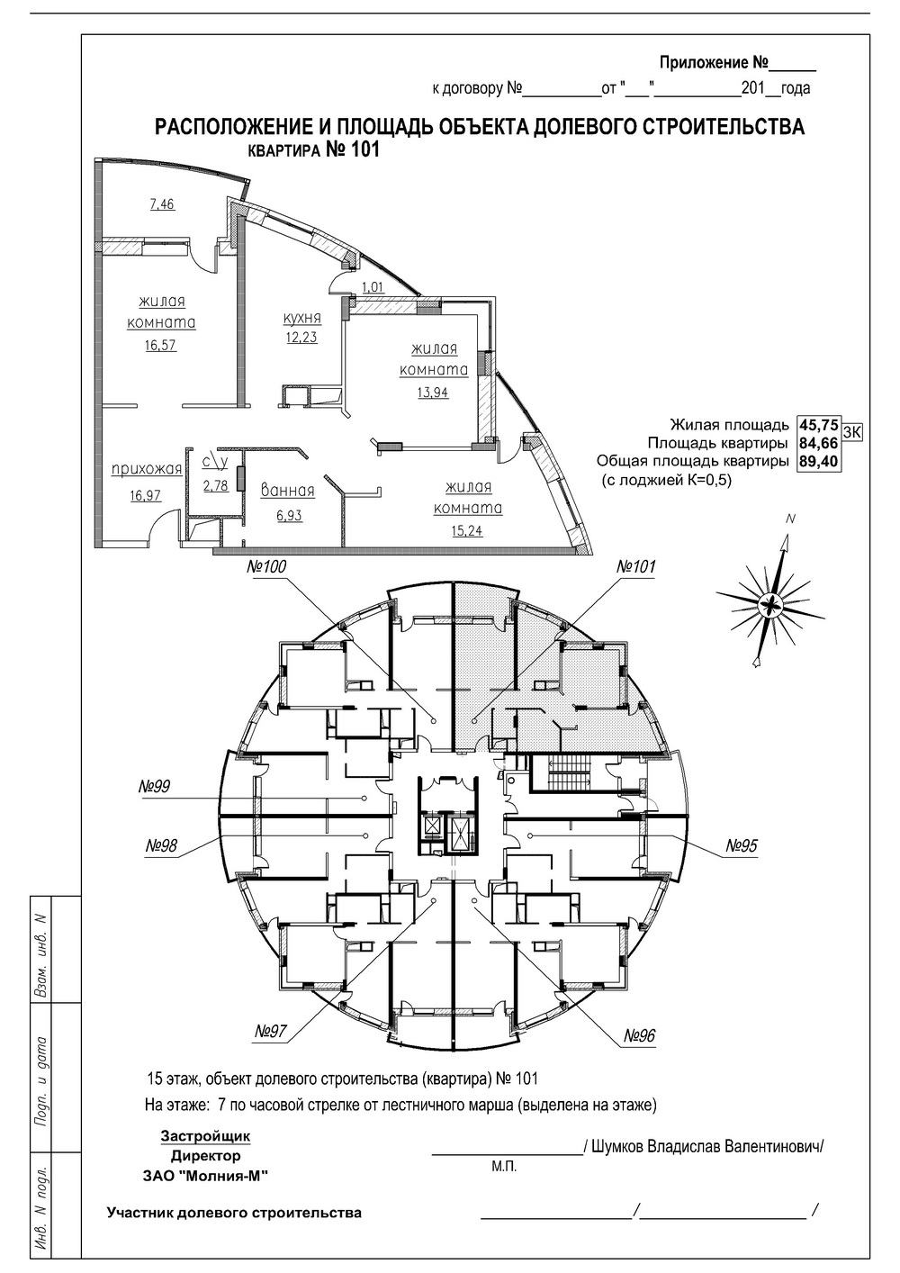
3 к
89,40 кв.м
кв №101
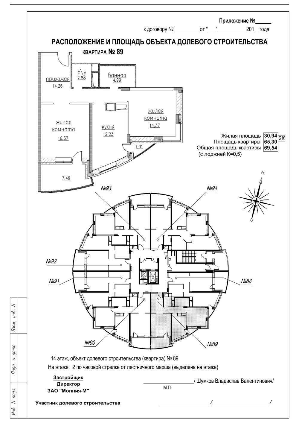
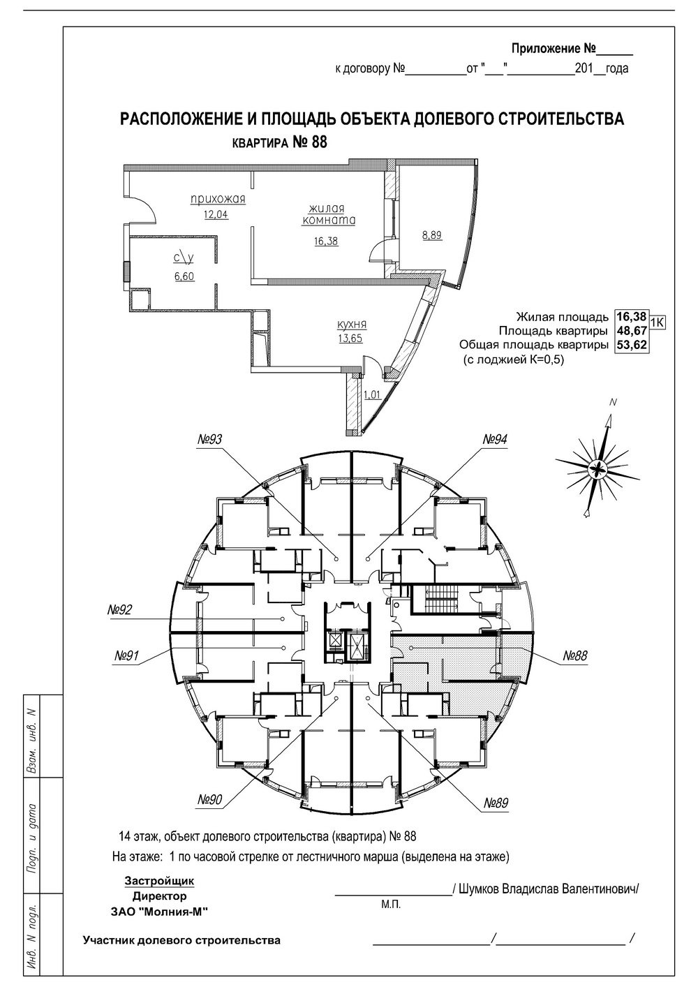
14 этаж 1 к
53,62 кв.м
кв №88
2 к
69,54 кв.м
кв №89
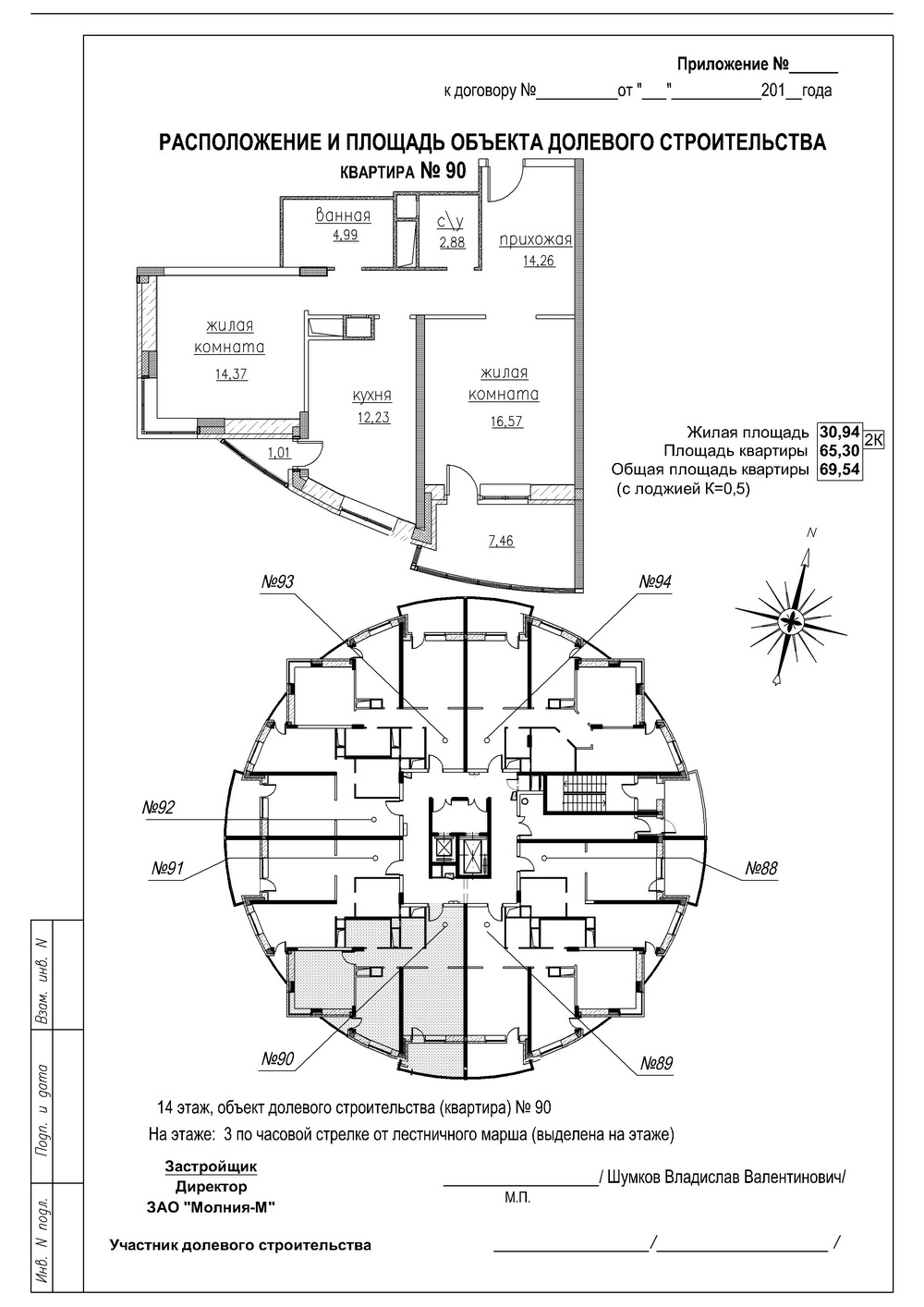
2 к
69,54 кв.м
кв №90
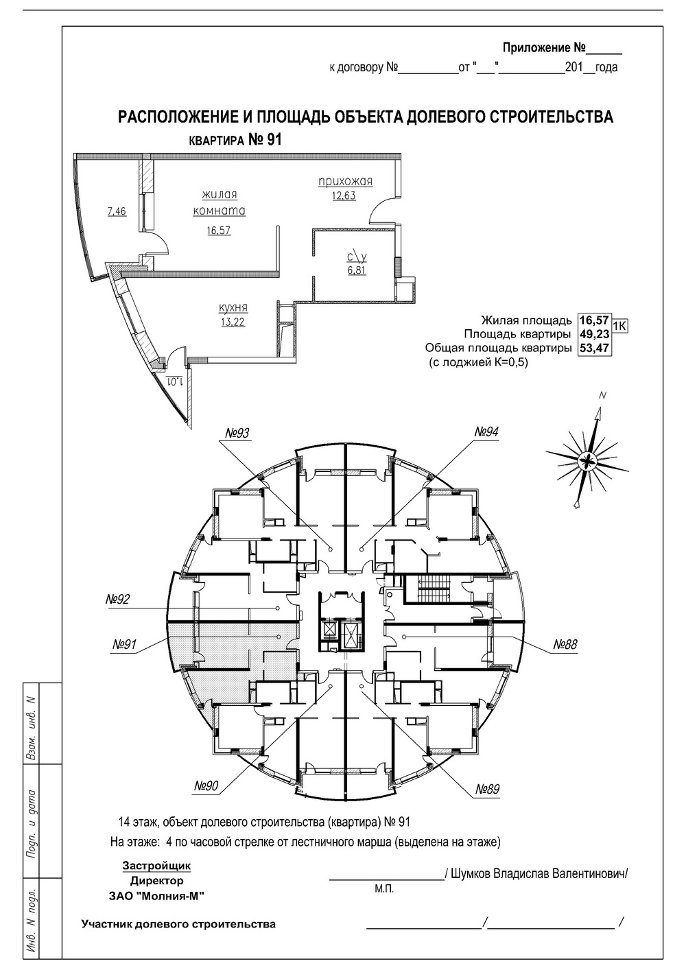
1 к
53,47 кв.м
кв №91
1 к
53,38 кв.м
кв №92
2 к
69,54 кв.м
кв №93
3 к
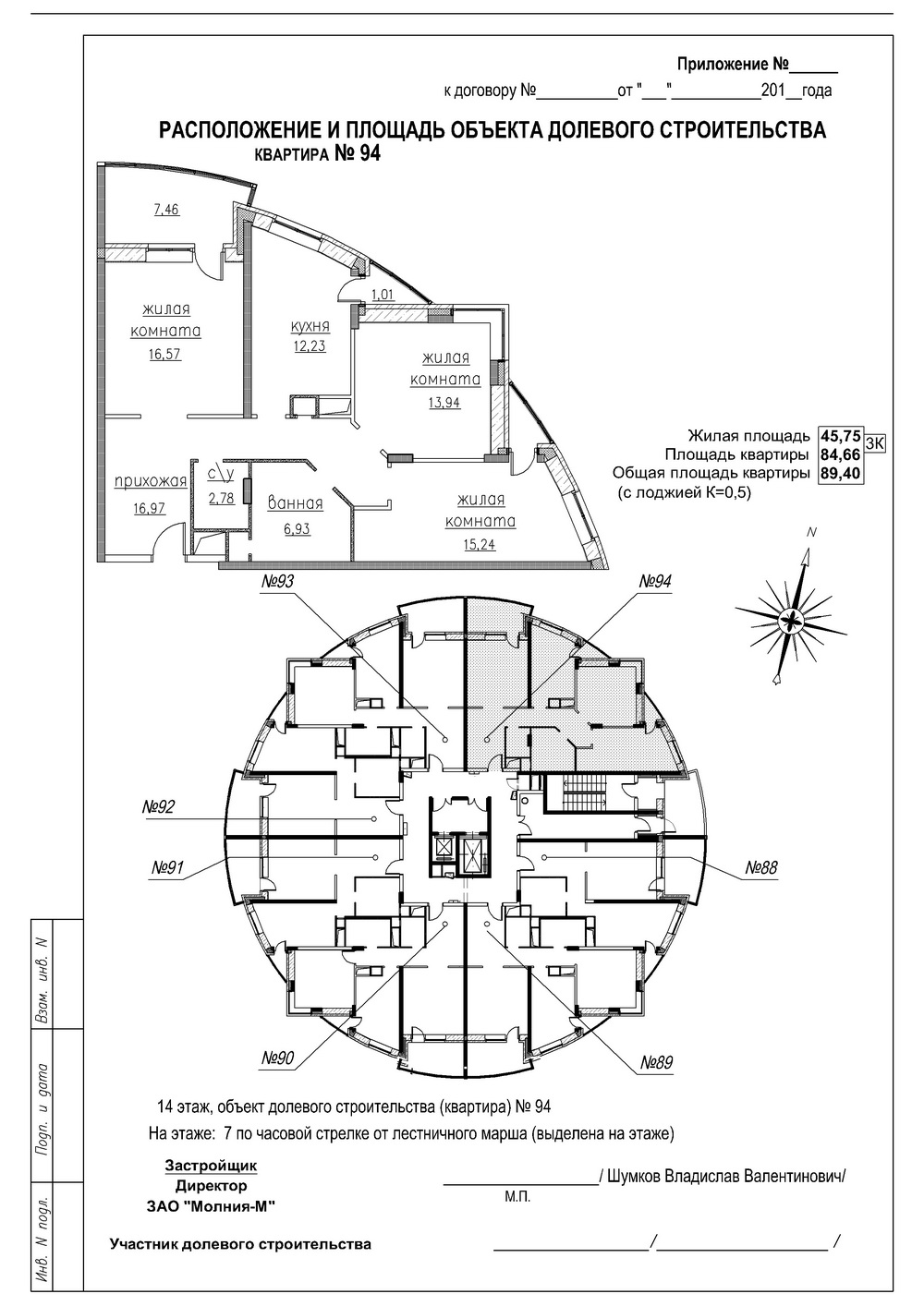
89,40 кв.м
кв №94
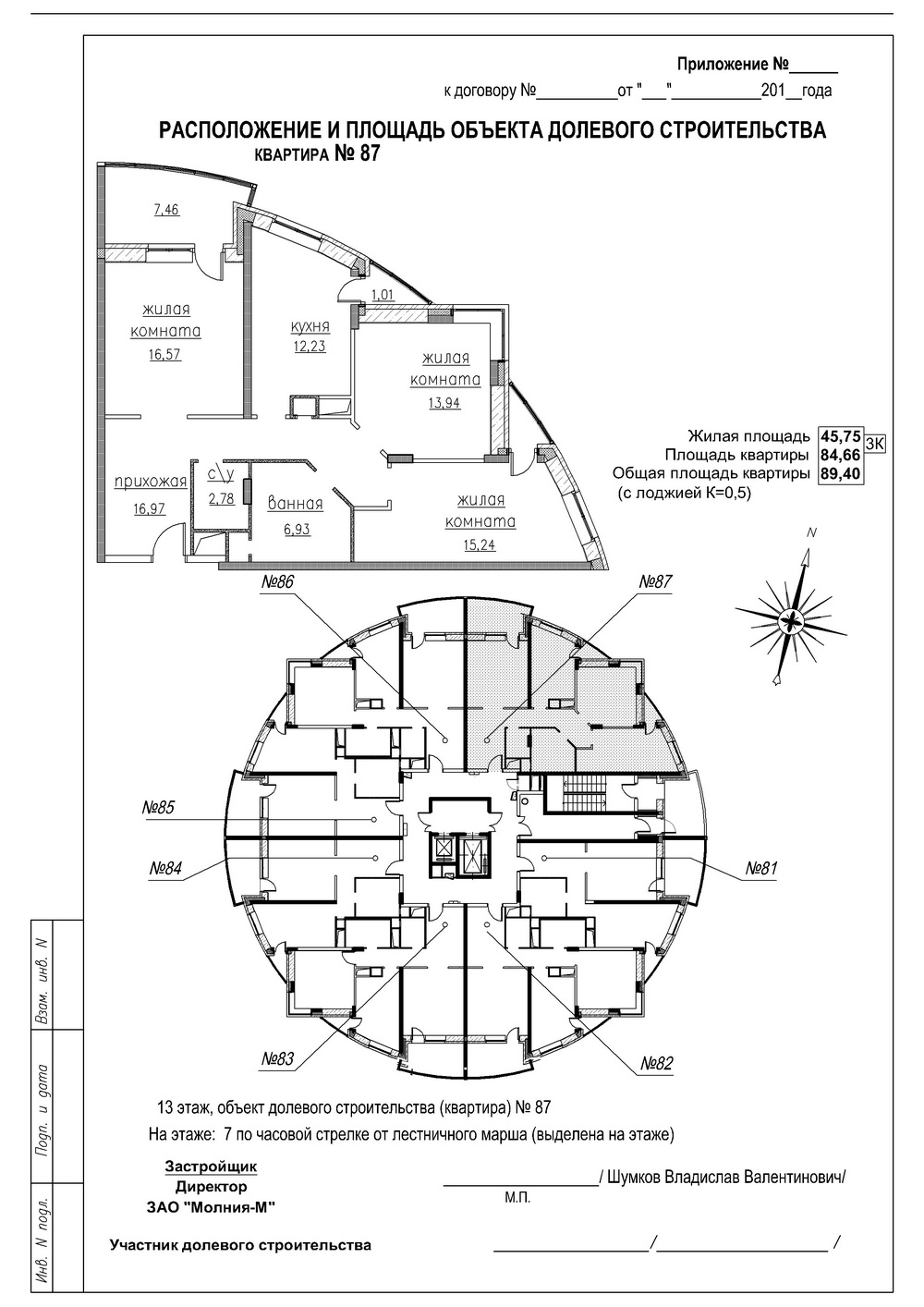
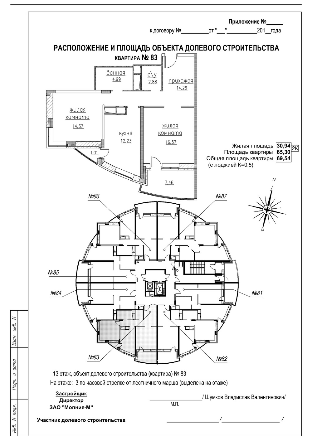
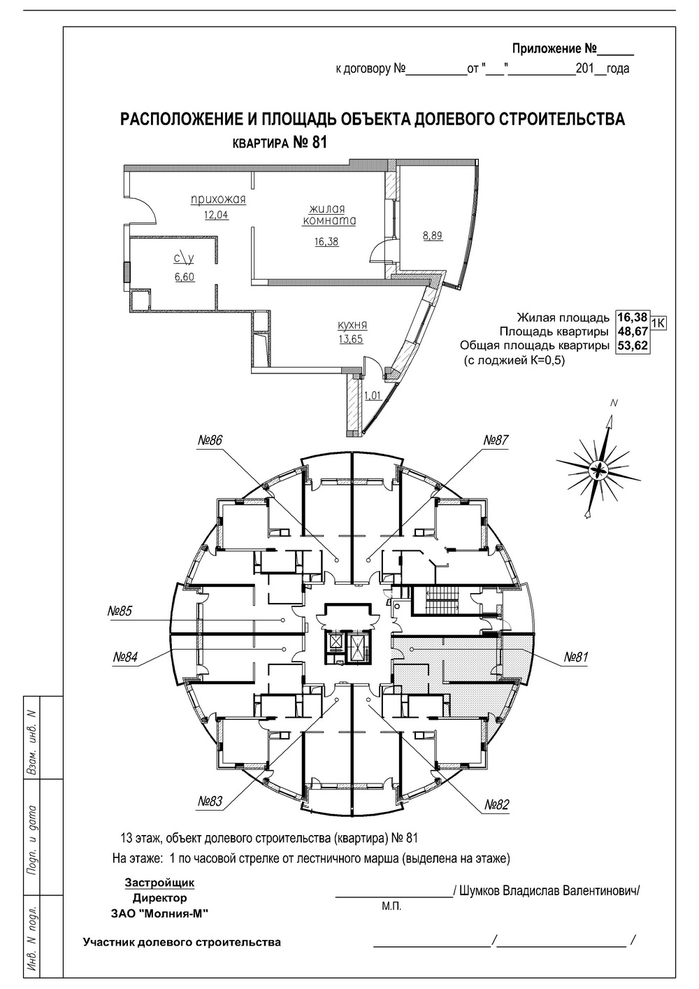
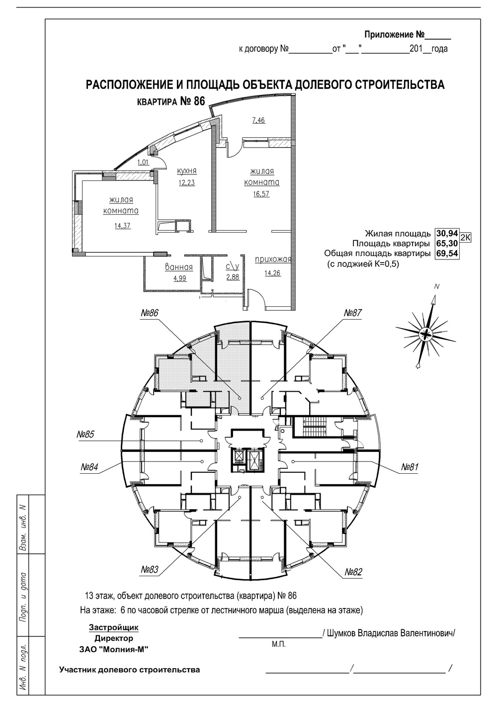
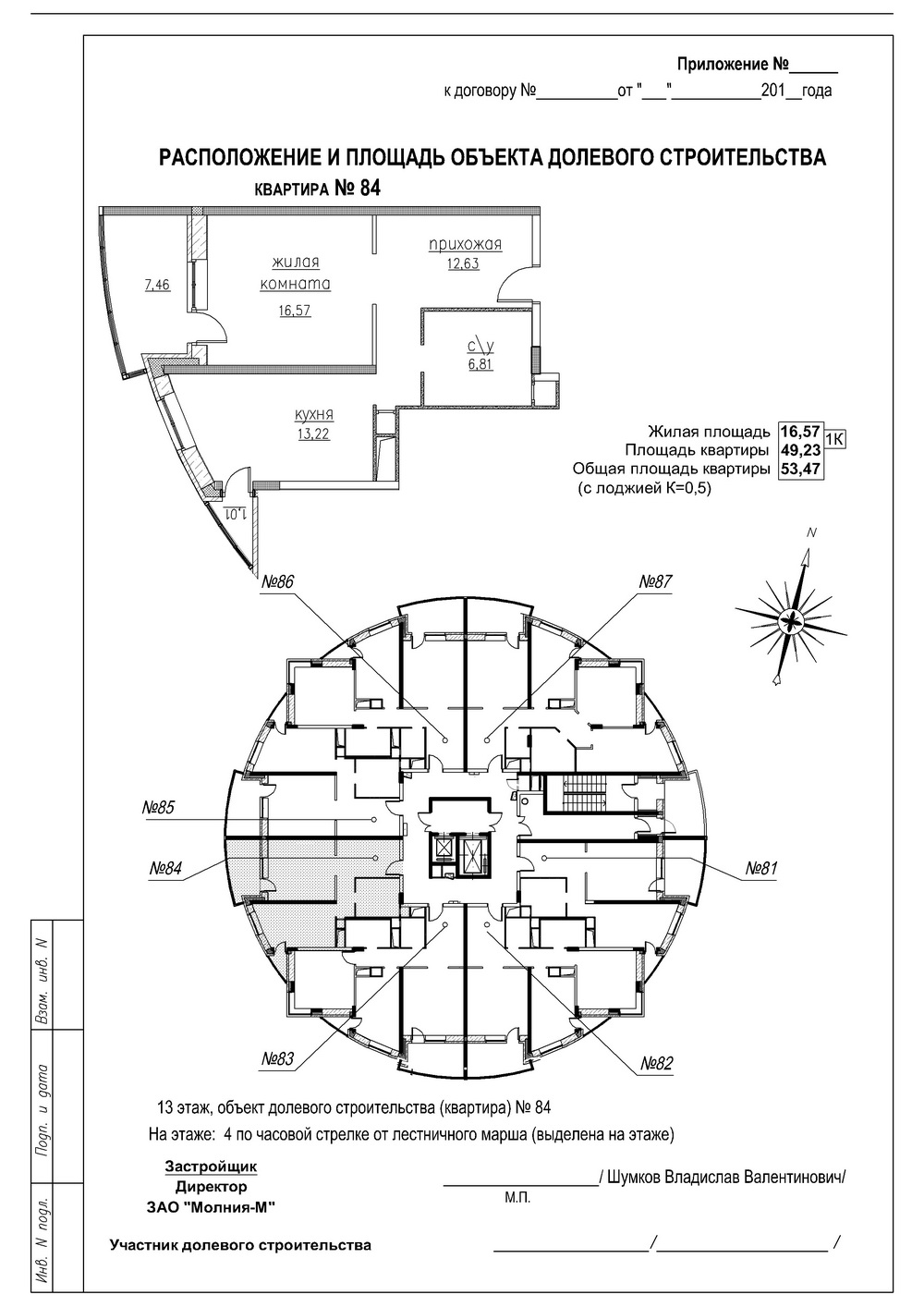
13 этаж 1 к
53,62 кв.м
кв №81
2 к
69,54 кв.м
кв №82
2 к
69,54 кв.м
кв №83
1 к
53,47 кв.м
кв №84
1 к
53,38 кв.м
кв №85
2 к
69,54 кв.м
кв №86
3 к
89,40 кв.м
кв №87
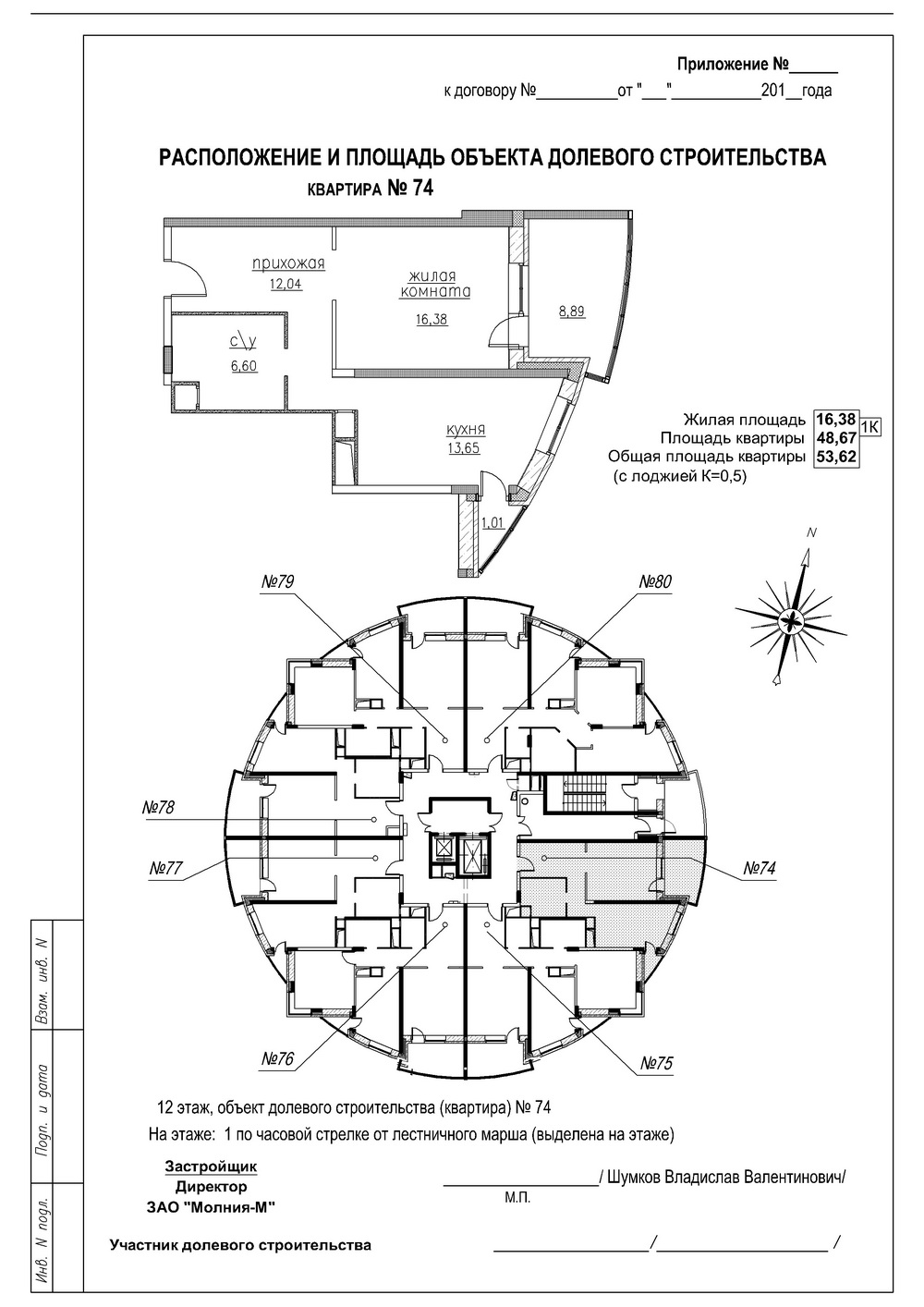
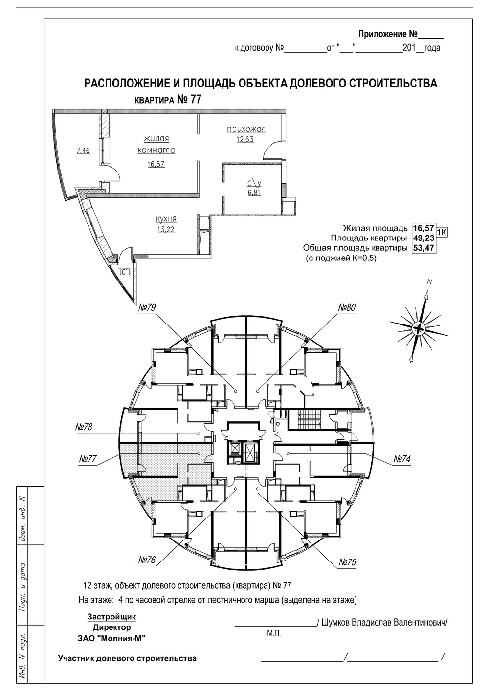
12 этаж 1 к
53,62 кв.м
кв №74
2 к
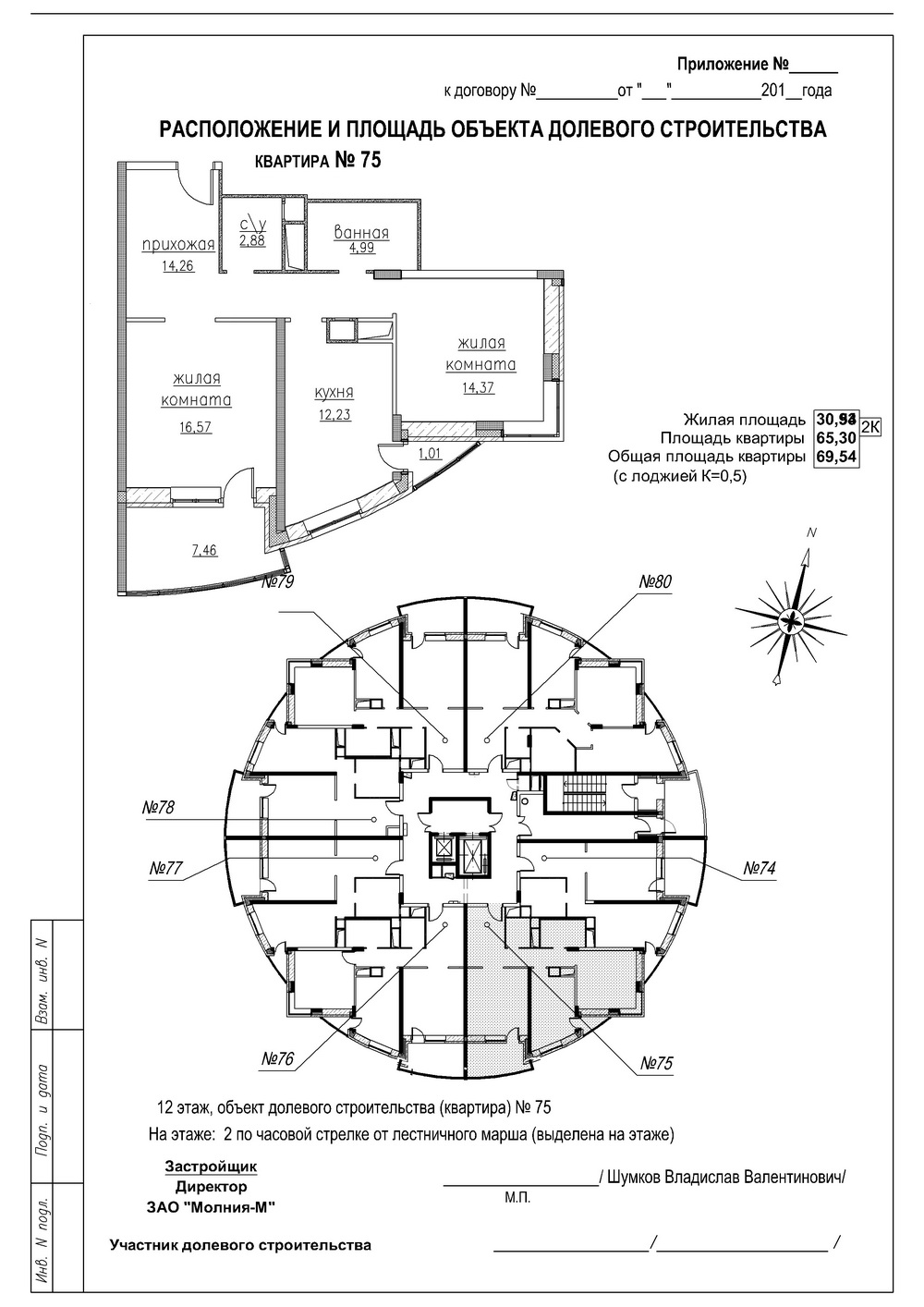
69,54 кв.м
кв №75
2 к
69,54 кв.м
кв №76
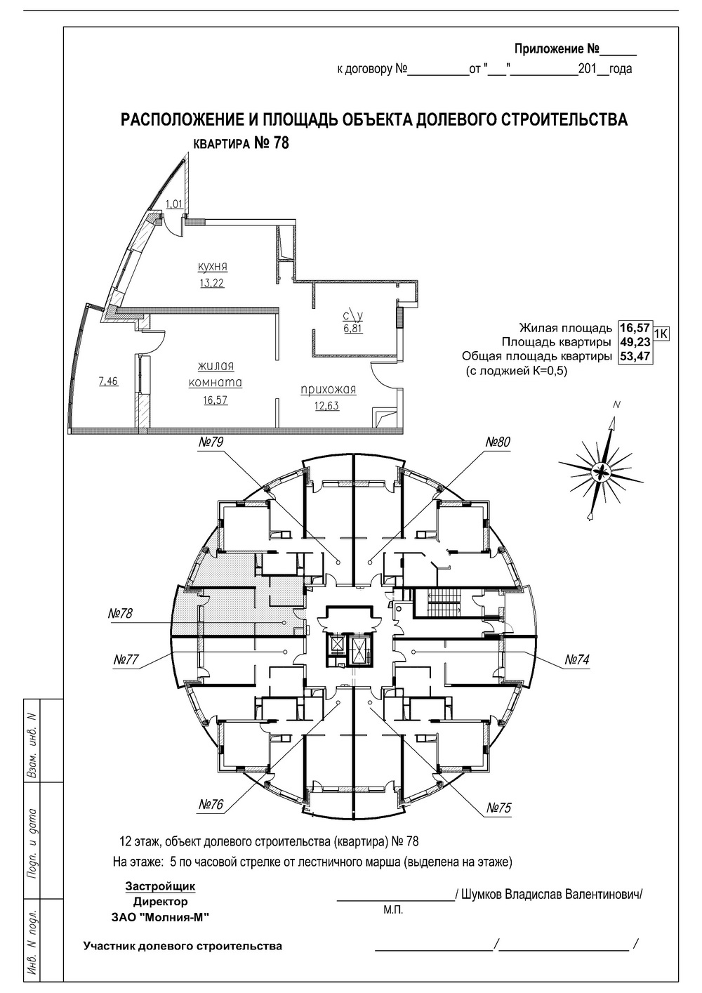
1 к
53,47 кв.м
кв №77
1 к
53,47 кв.м
кв №78
2 к
69,54 кв.м
кв №79
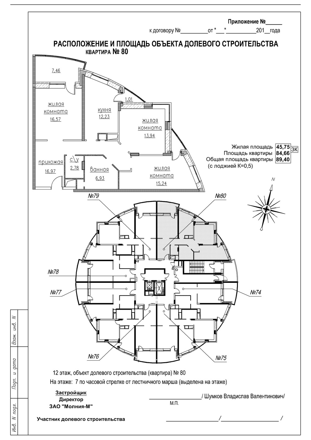
3 к
89,40 кв.м
кв №80
11 этаж 1 к
51,84 кв.м
кв №67
2 к
67,34 кв.м
кв №68
2 к
67,34 кв.м
кв №69
1 к
51,68 кв.м
кв №70
1 к
51,59 кв.м
кв №71
2 к
67,34 кв.м
кв №72
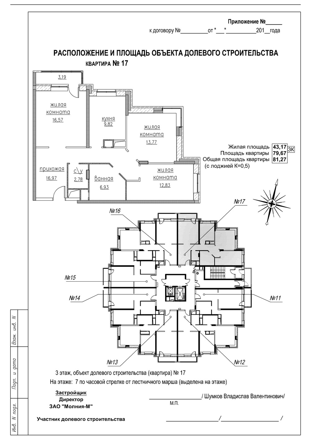
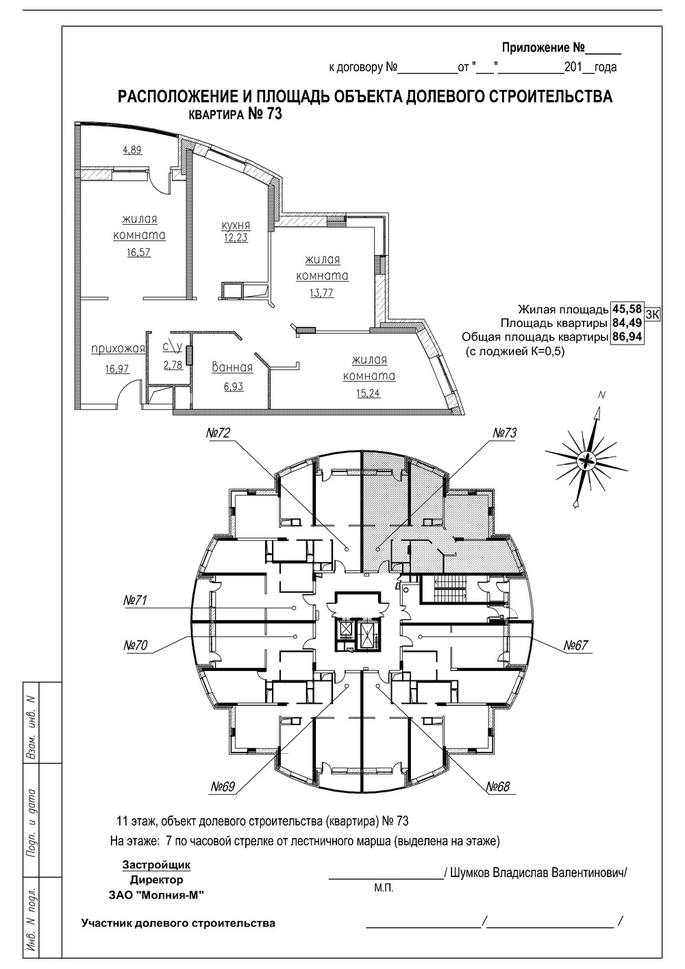
3 к
86,94 кв.м
кв №73
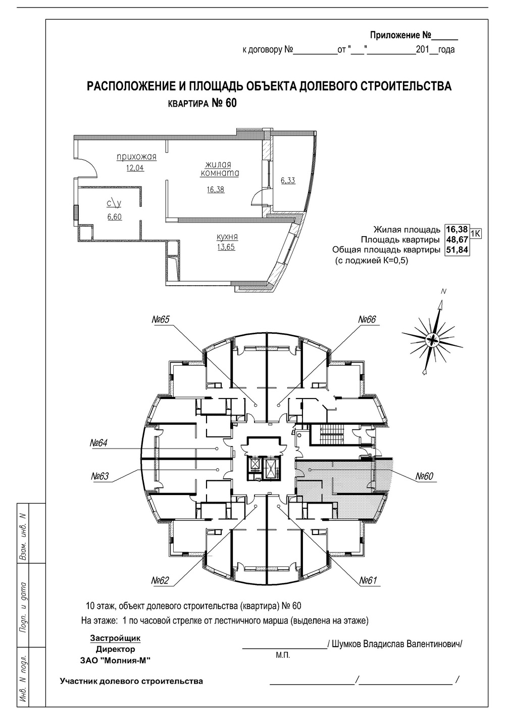
10 этаж 1 к
51,84 кв.м
кв №60
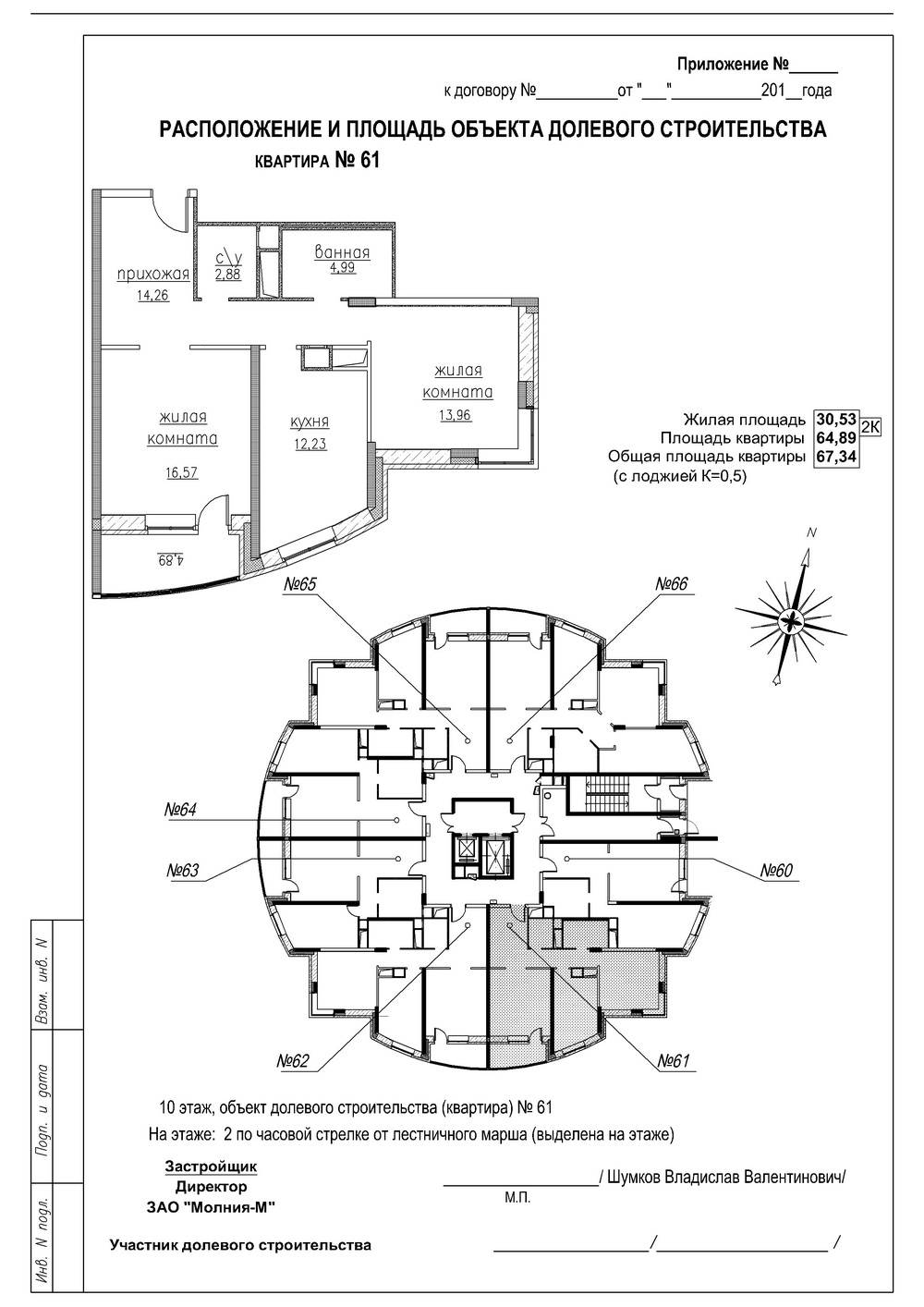
2 к
67,34 кв.м
кв №61
2 к
67,34 кв.м
кв №62
1 к
51,68 кв.м
кв №63
1 к
51,59 кв.м
кв №64
2 к
67,34 кв.м
кв №65
3 к
86,94 кв.м
кв №66
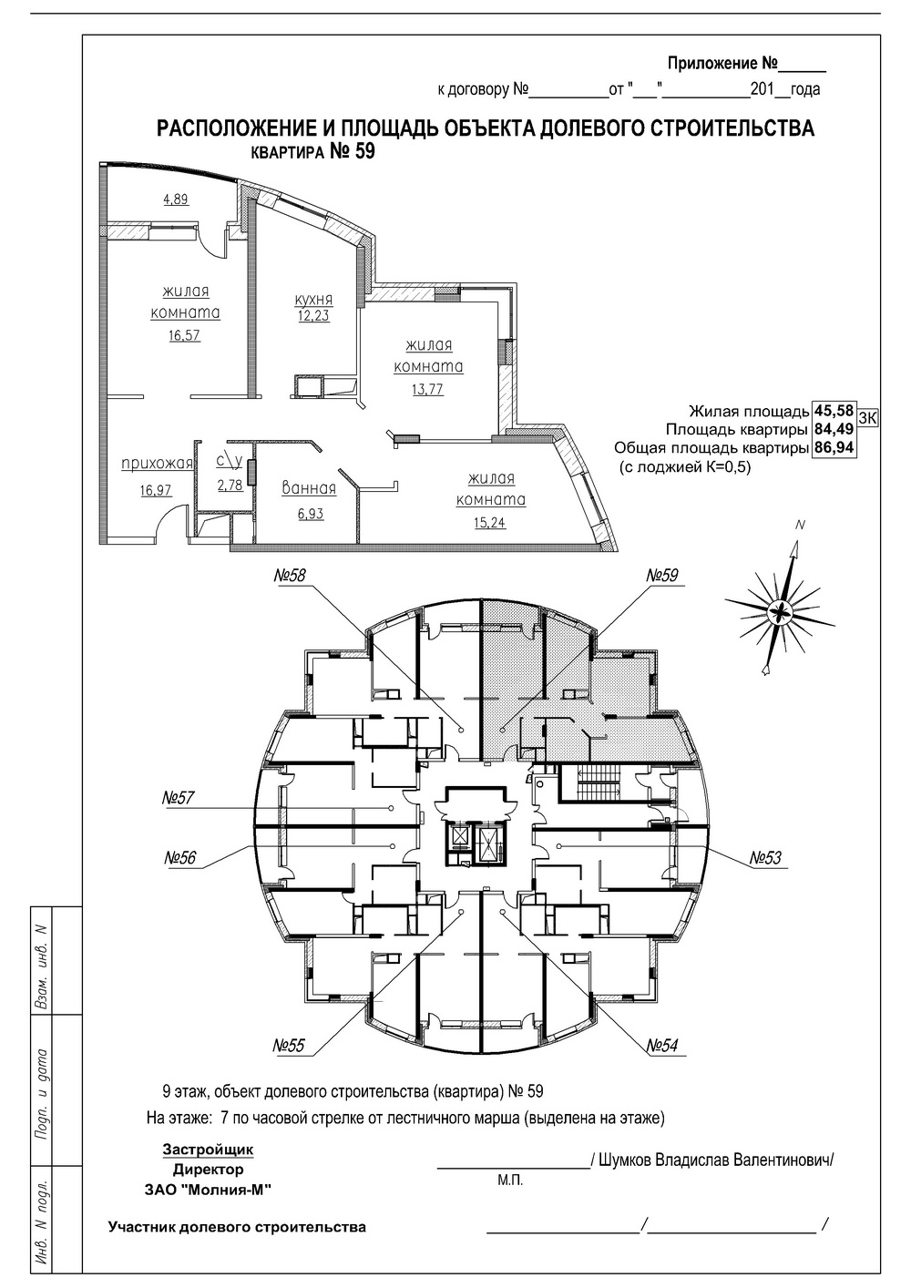
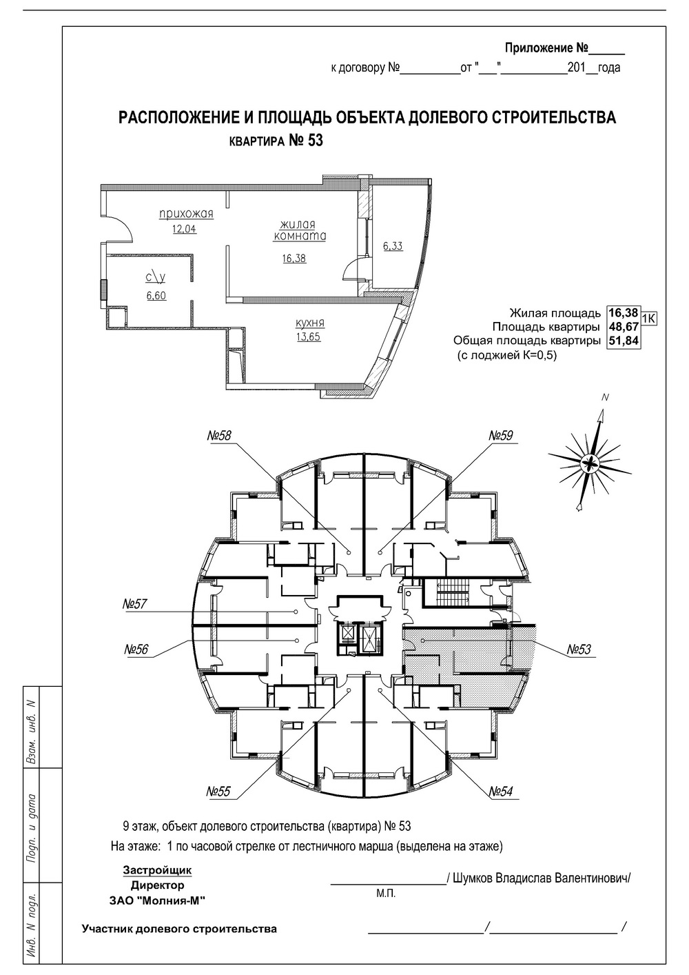
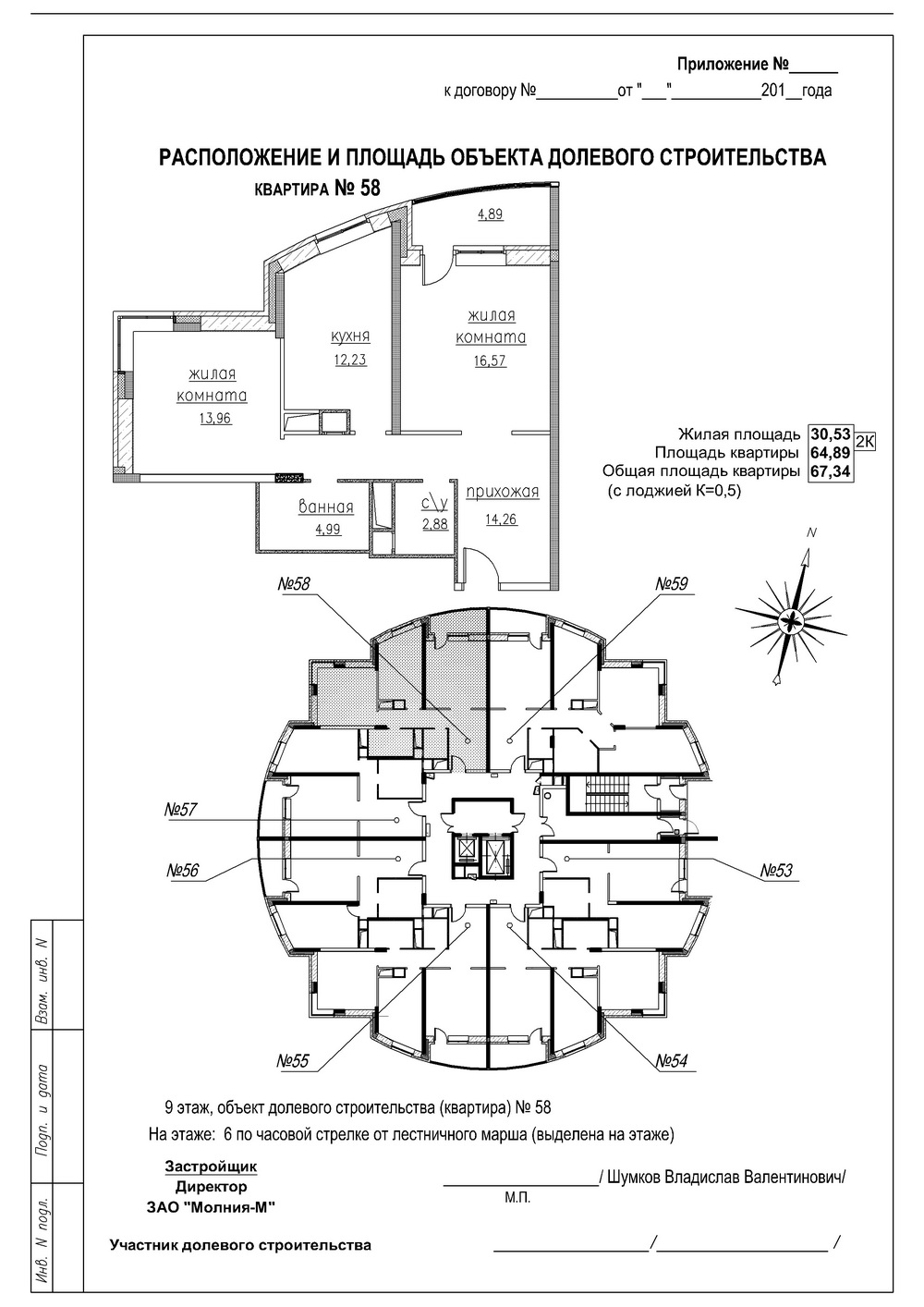
9 этаж 1 к
51,84 кв.м
кв №53
2 к
67,34 кв.м
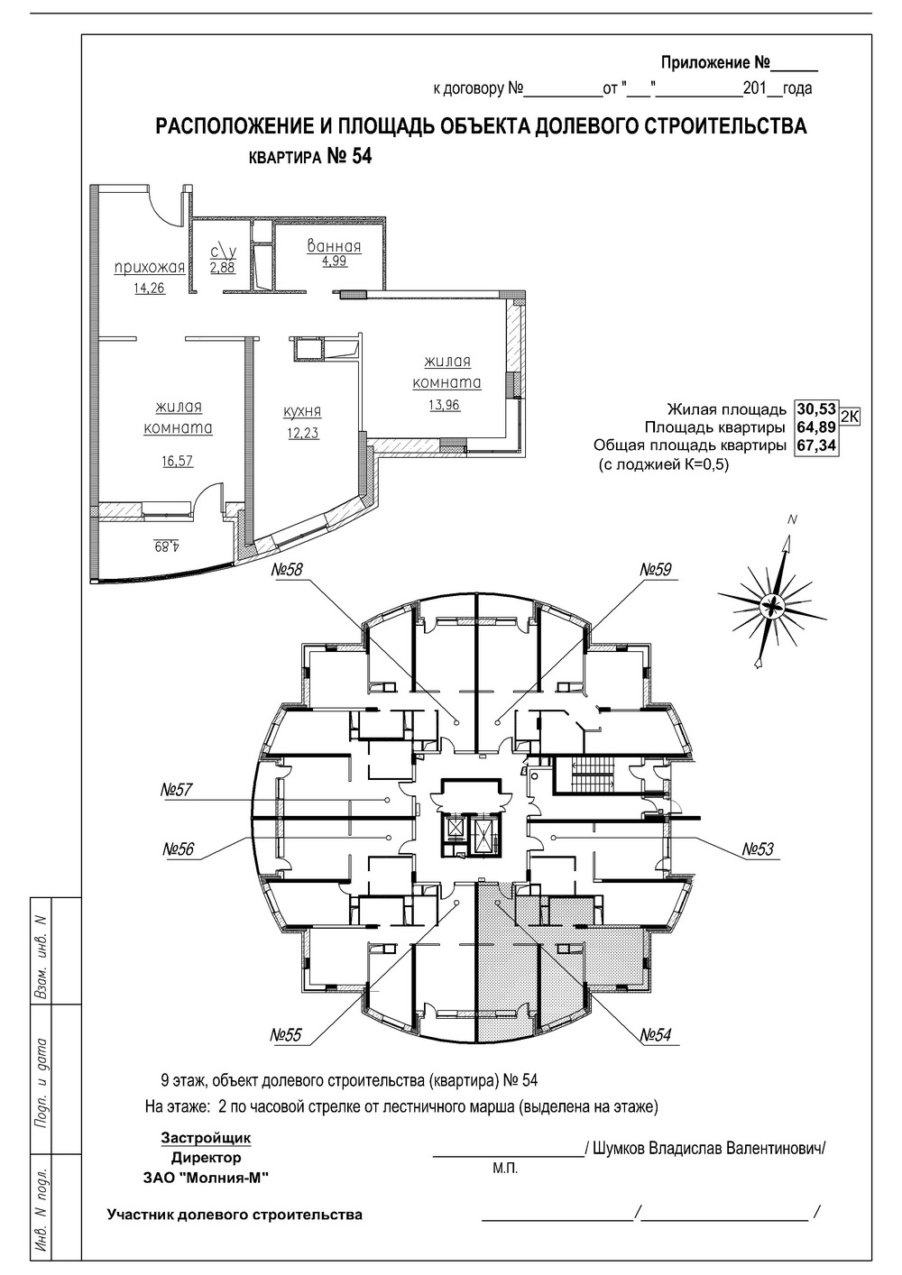
кв №54
2 к
67,34 кв.м
кв №55
1 к
51,68 кв.м
кв №56
1 к
51,59 кв.м
кв №57
2 к
67,34 кв.м
кв №58
3 к
86,94 кв.м
кв №59
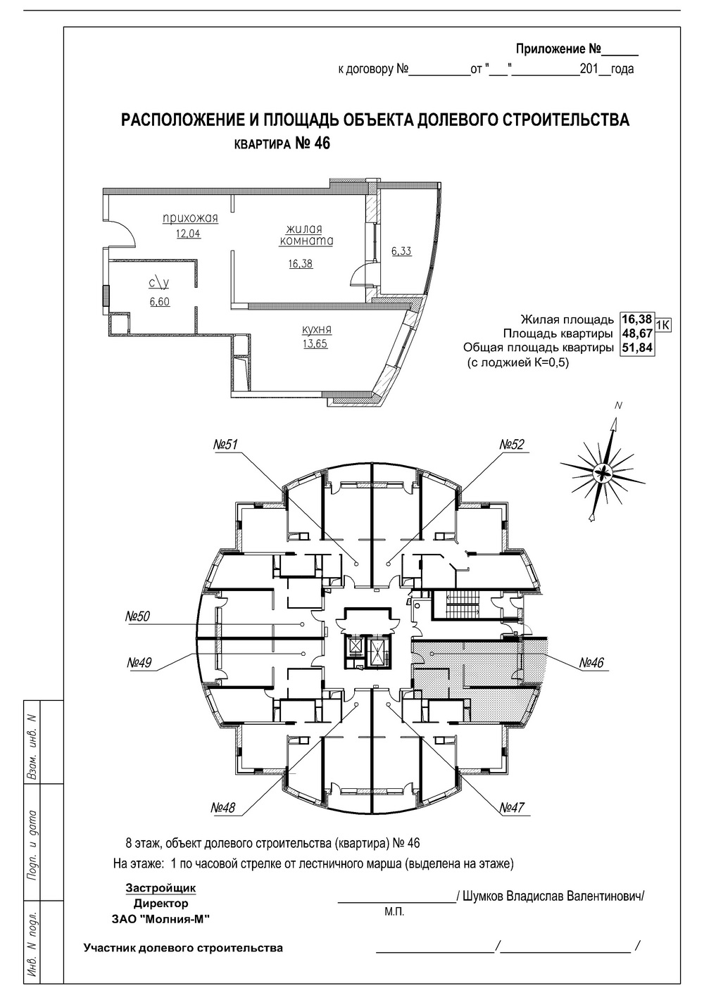
8 этаж 1 к
51,84 кв.м
кв №46
2 к
67,34 кв.м
кв №47
2 к
67,34 кв.м
кв №48
1 к
51,68 кв.м
кв №49
1 к
51,59 кв.м
кв №50
2 к
67,34 кв.м
кв №51
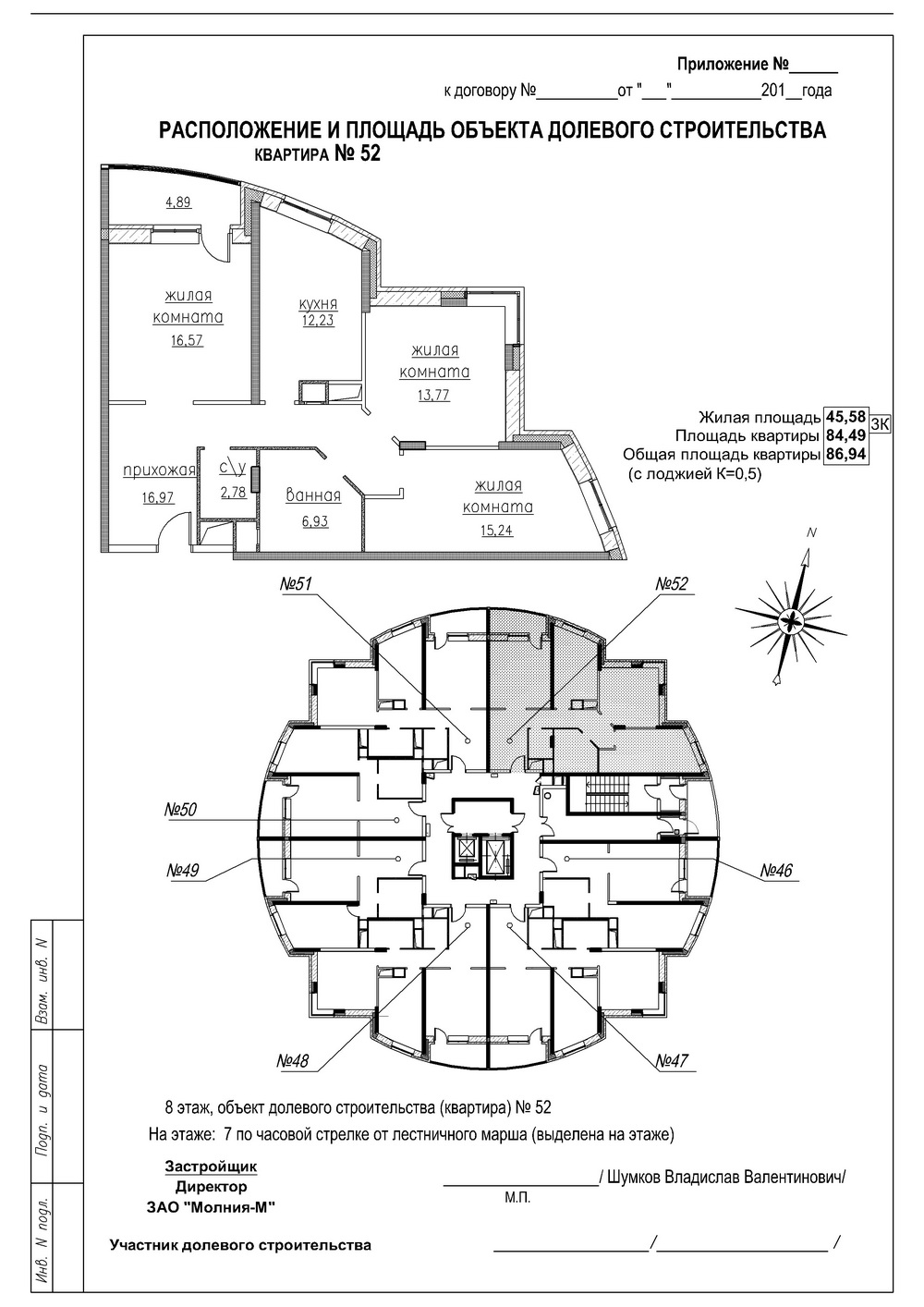
3 к
86,94 кв.м
кв №52
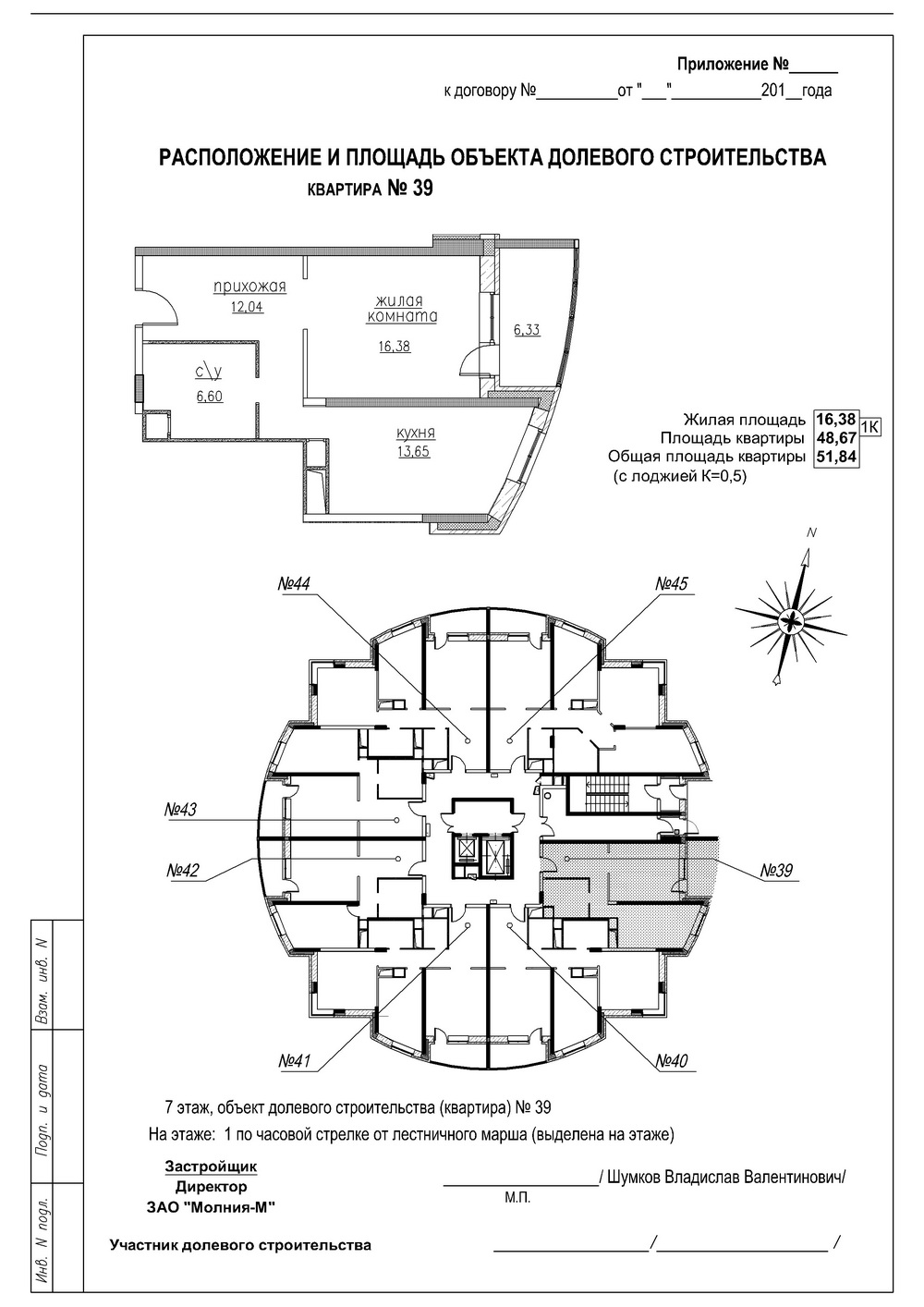
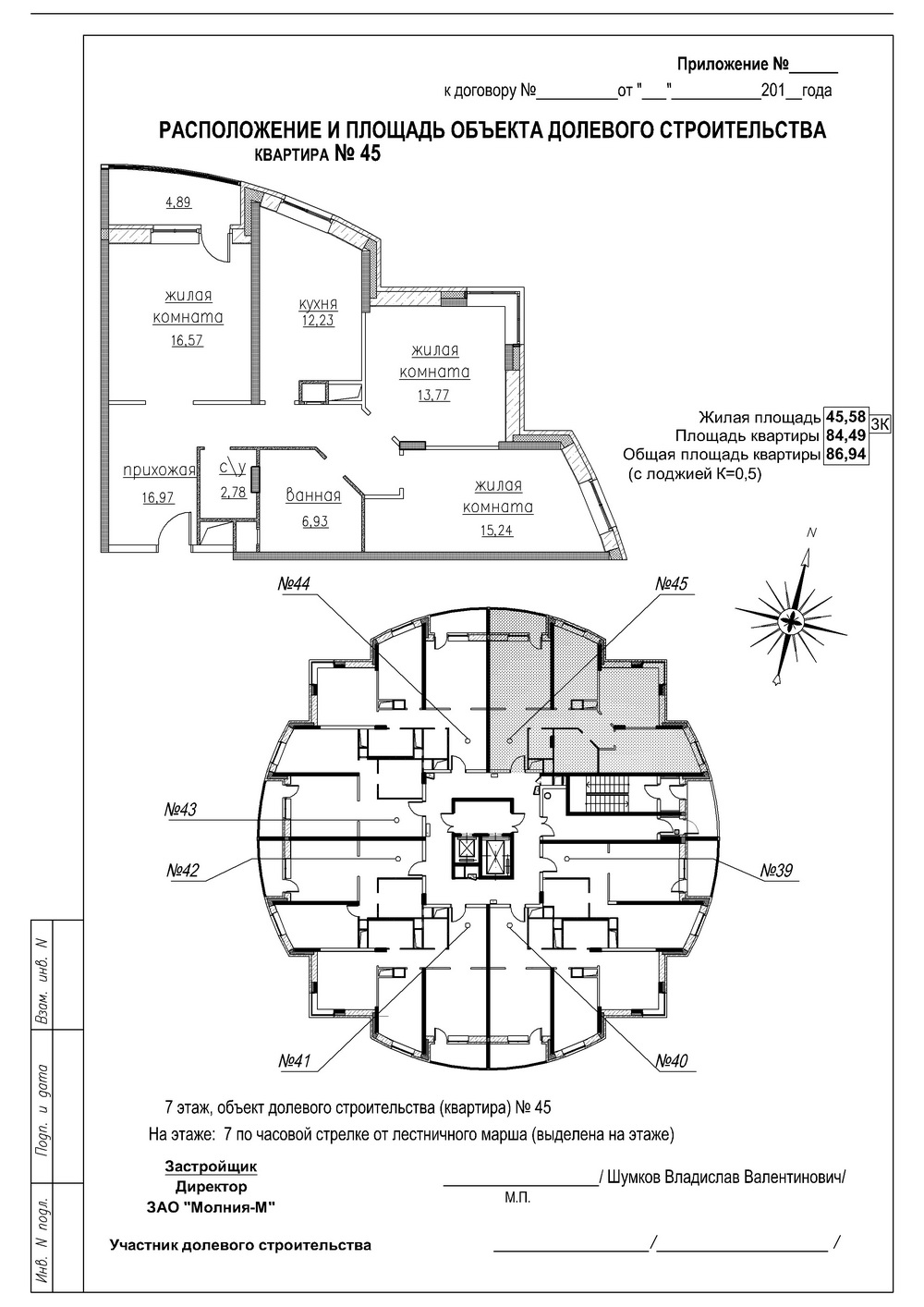
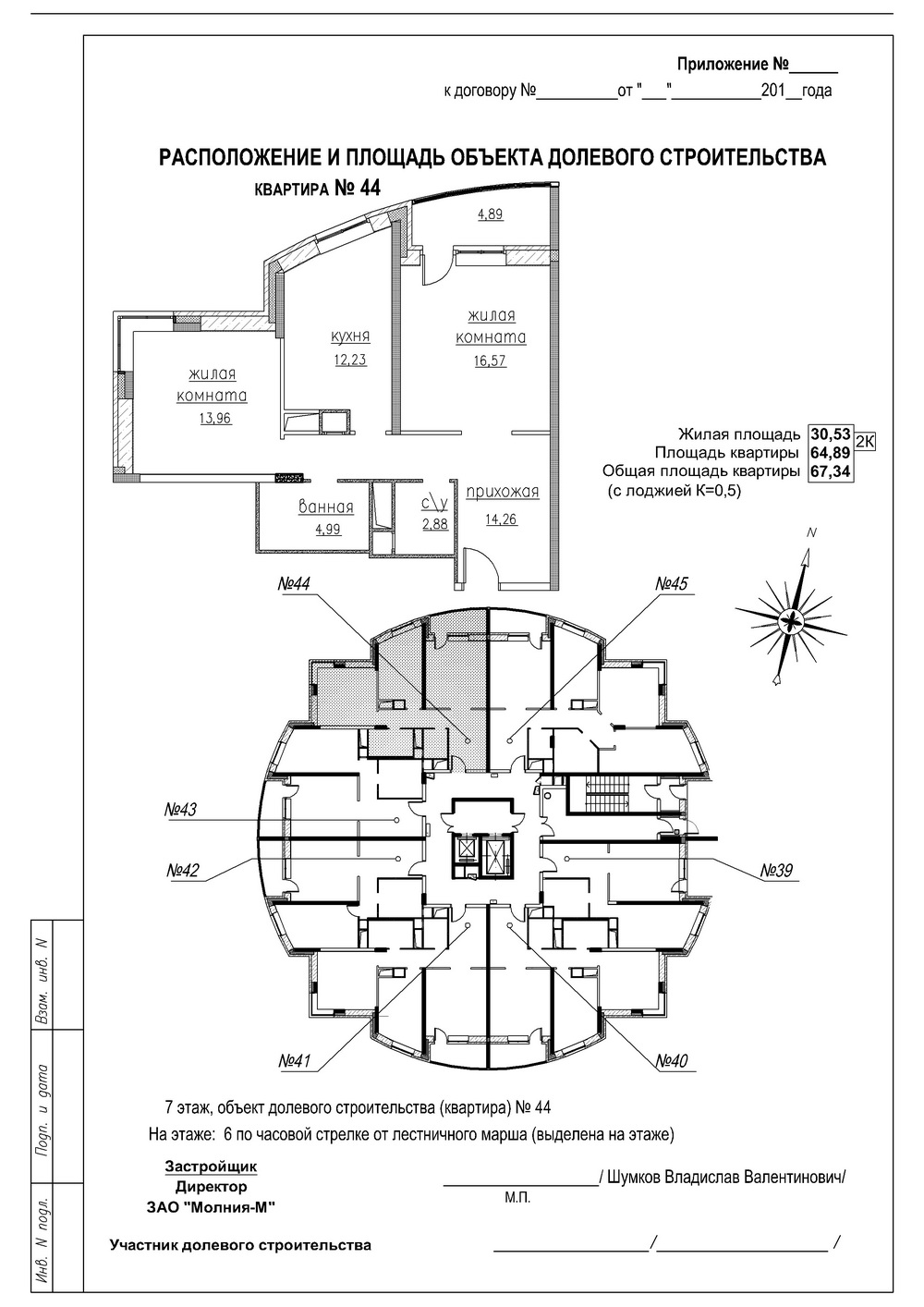
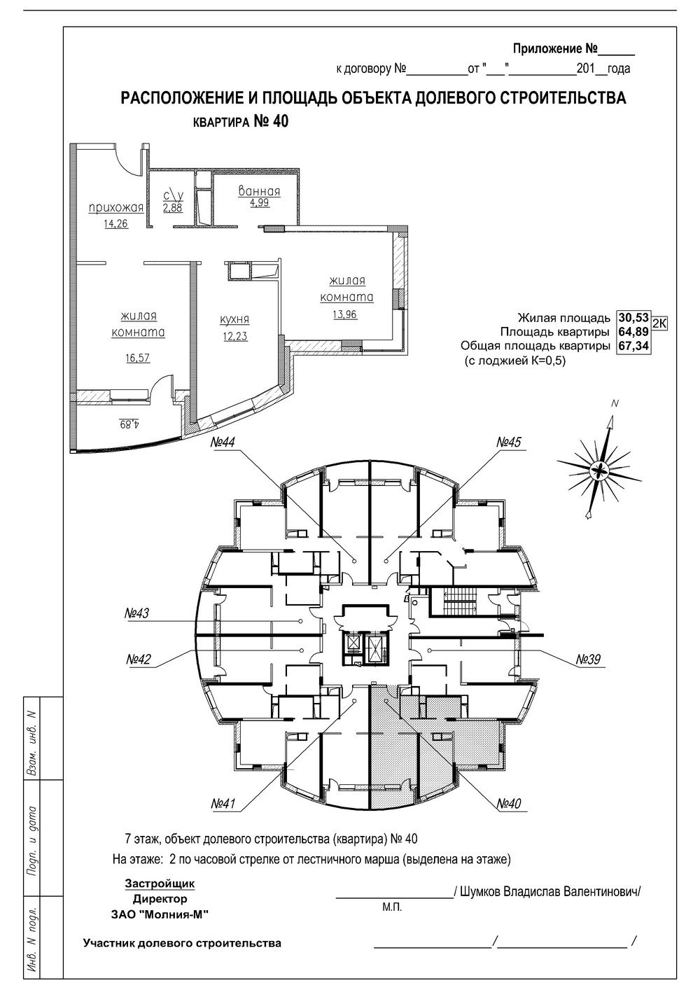
7 этаж 1 к
51,84 кв.м
кв №39
2 к
67,34 кв.м
кв №40
2 к
67,34 кв.м
кв №41
1 к
51,68 кв.м
кв №42
1 к
51,59 кв.м
кв №43
2 к
67,34 кв.м
кв №44
3 к
86,94 кв.м
кв №45
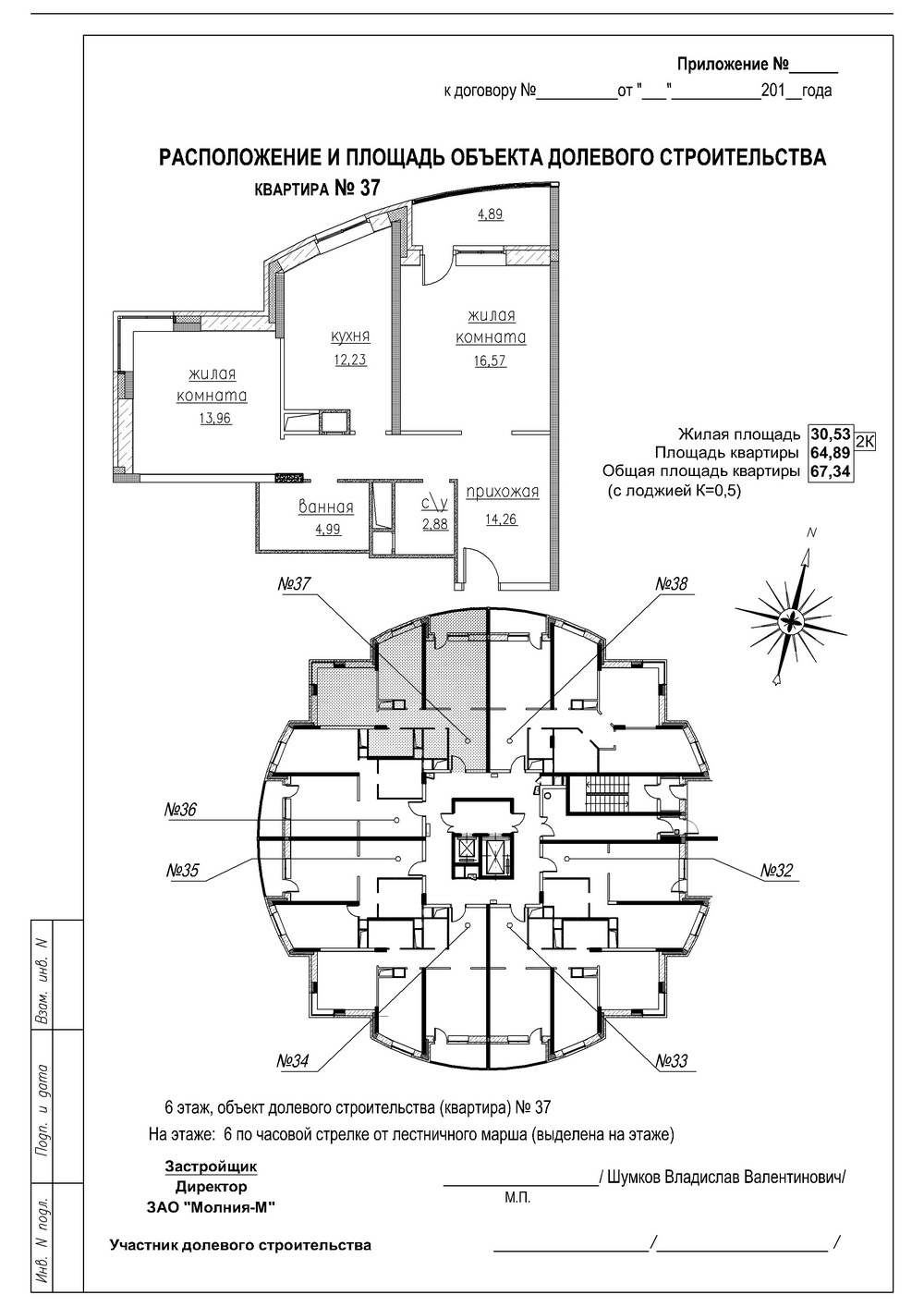
6 этаж 1 к
51,84 кв.м
кв №32
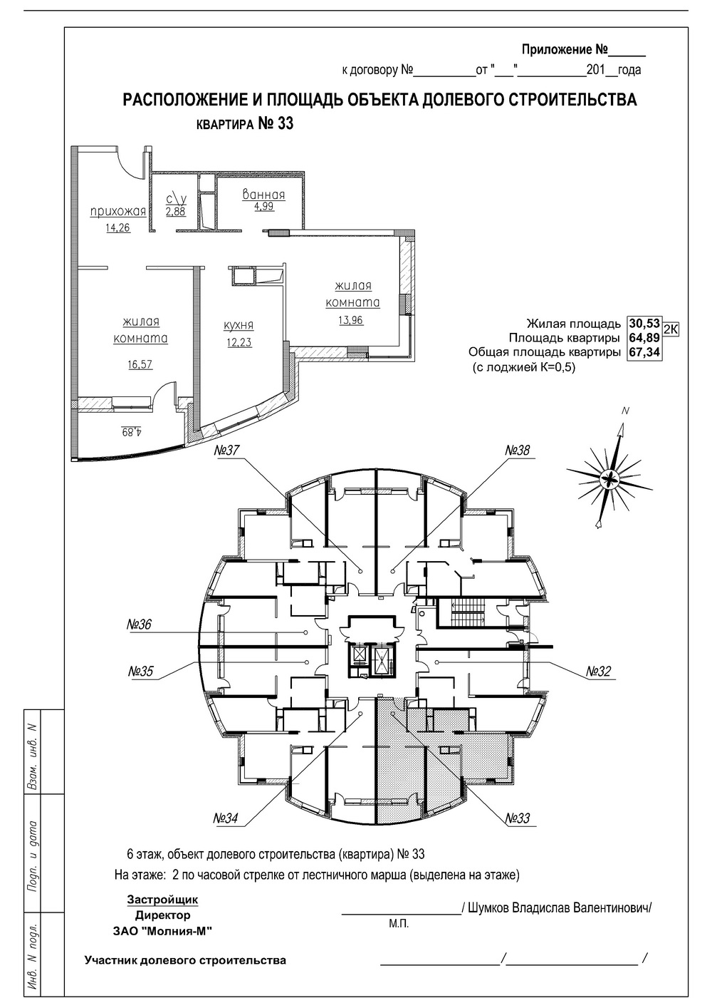
2 к
67,34 кв.м
кв №33
2 к
67,34 кв.м
кв №34
1 к
51,68 кв.м
кв №35
1 к
51,59 кв.м
кв №36
2 к
67,34 кв.м
кв №37
3 к
86,94 кв.м
кв №38
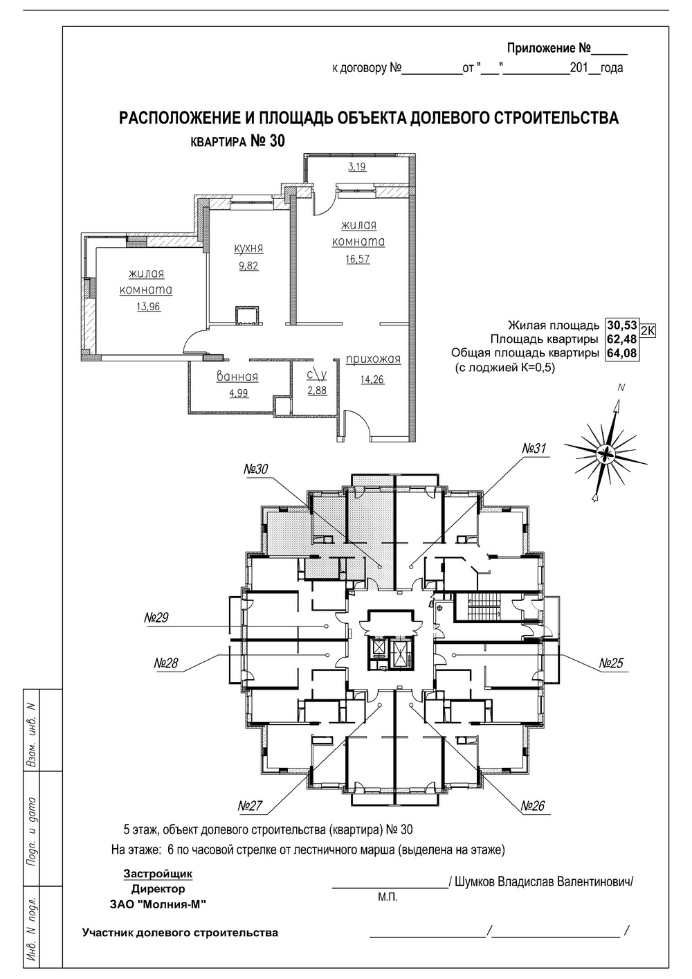
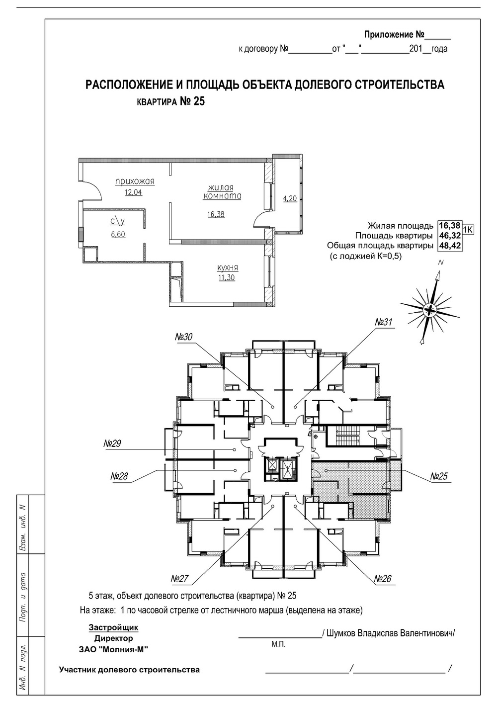
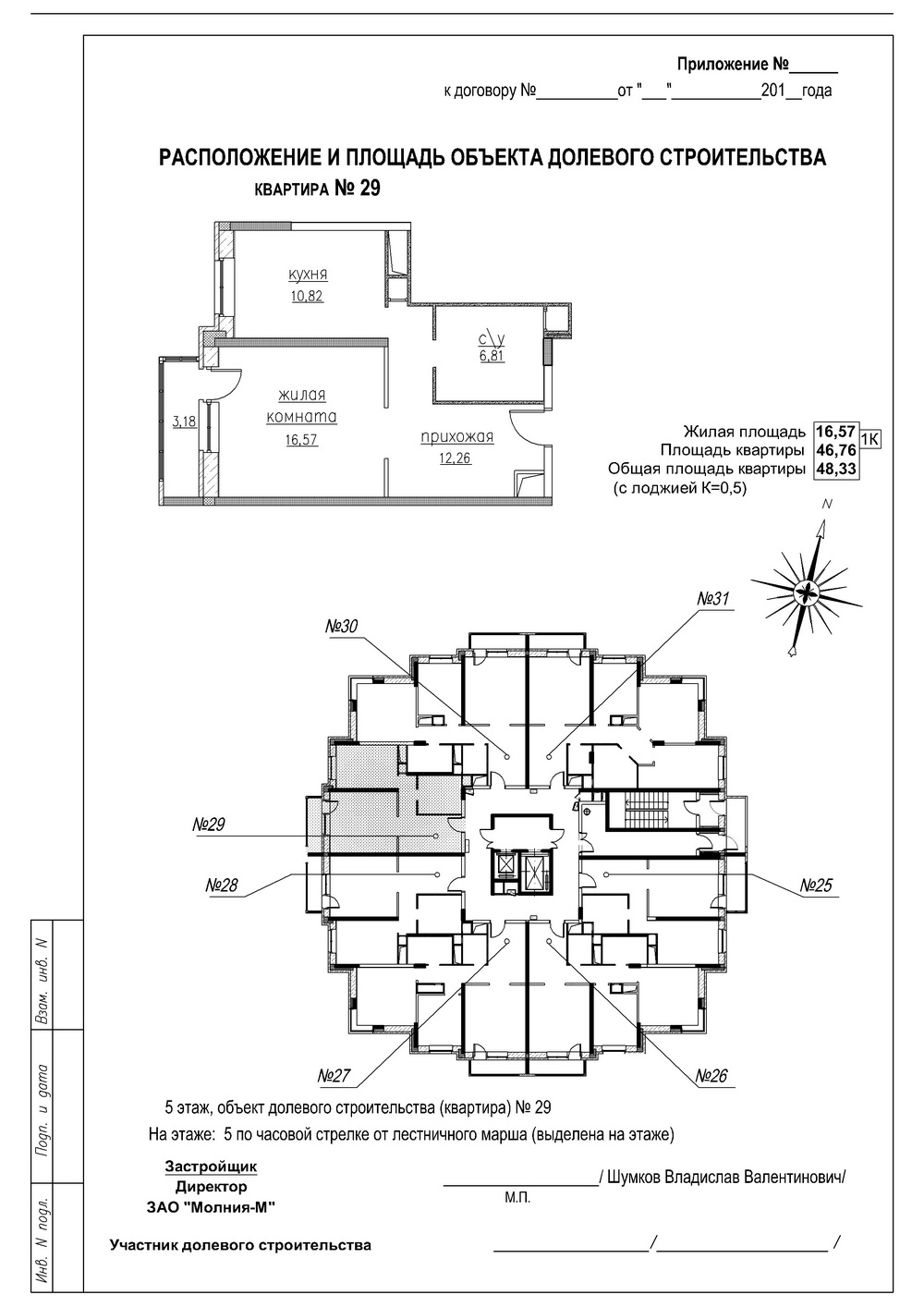
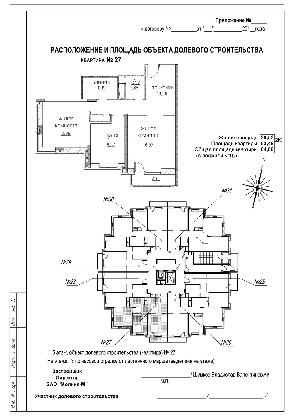
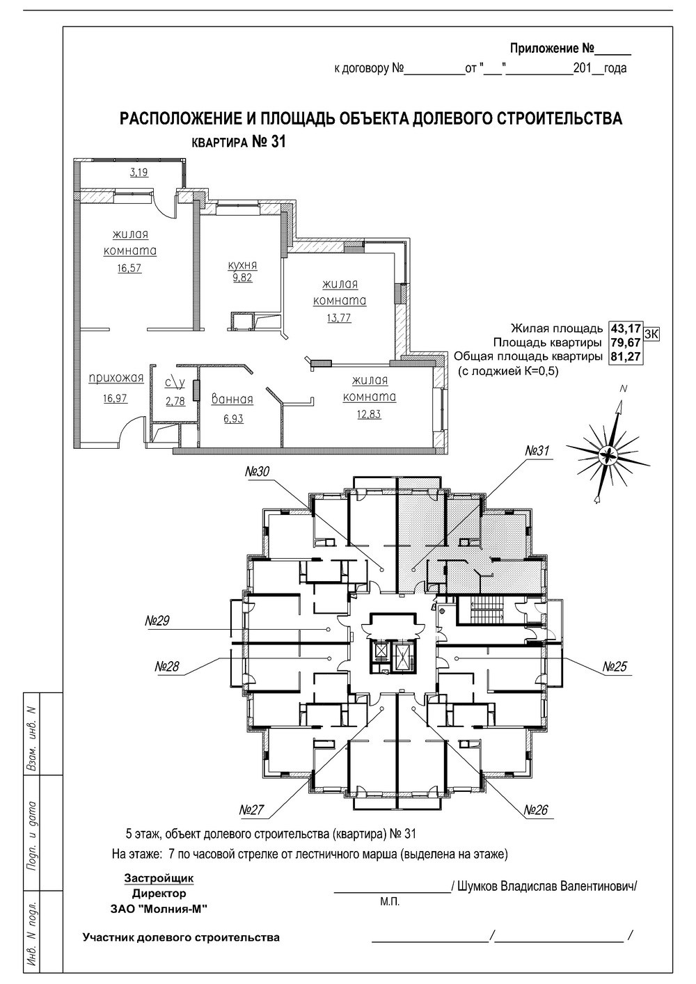
5 этаж 1 к
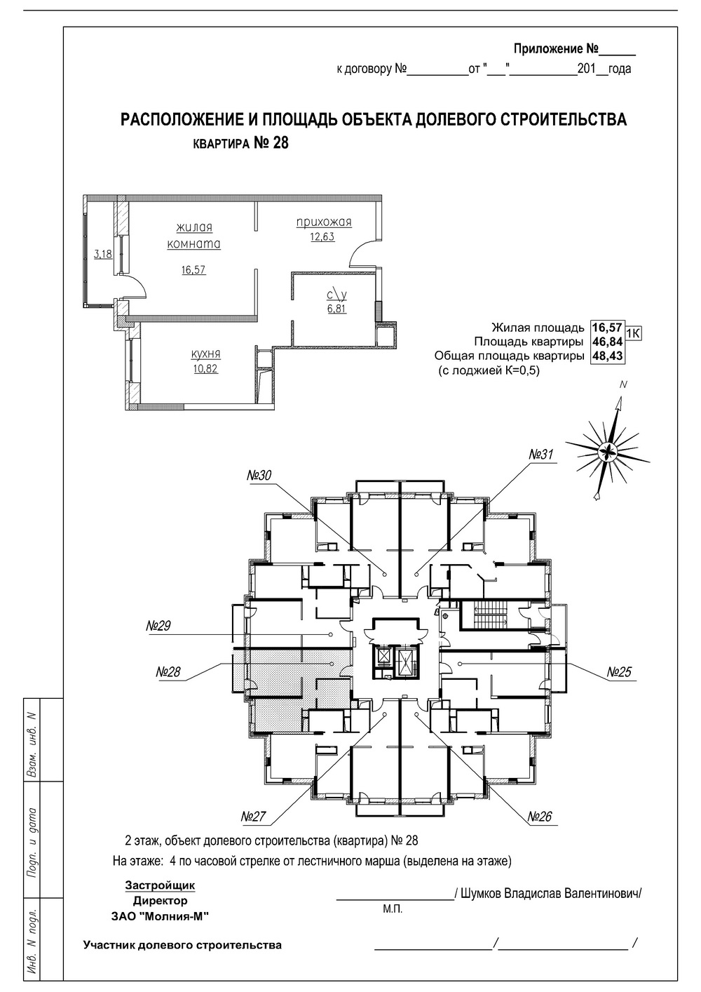
48,42 кв.м
кв №25
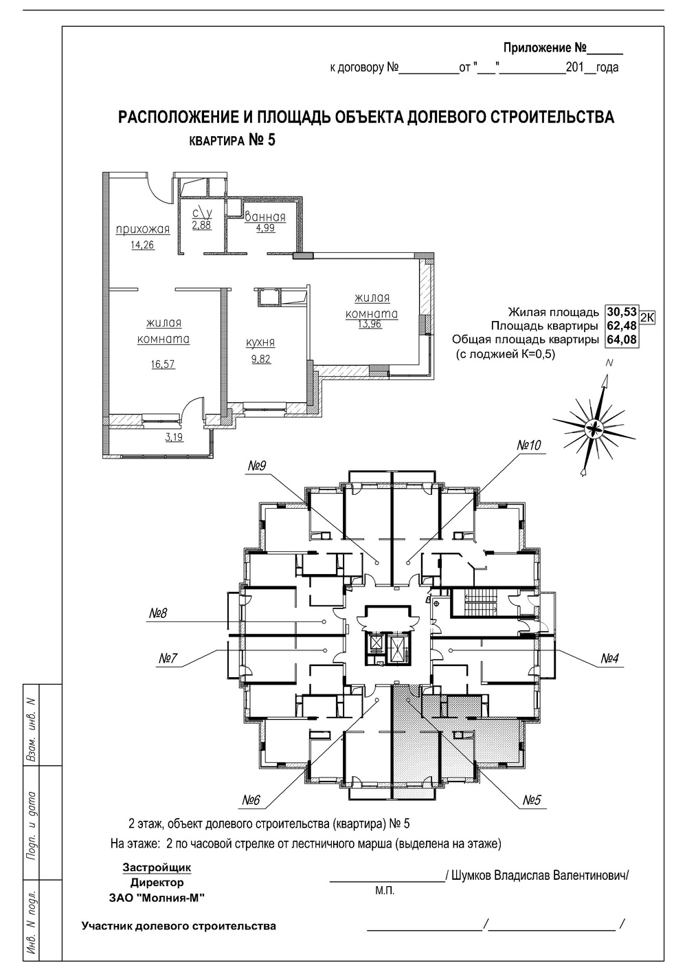
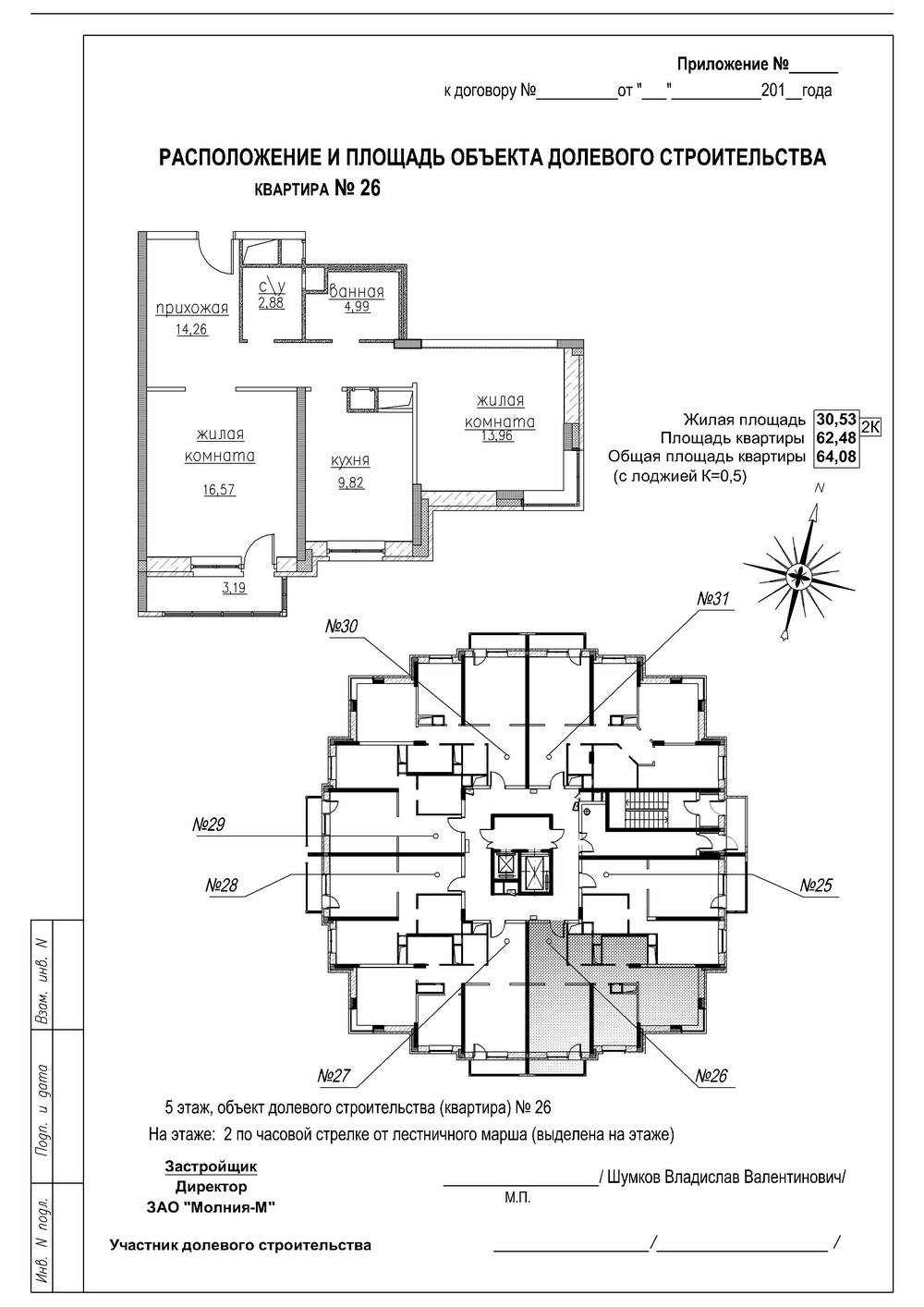
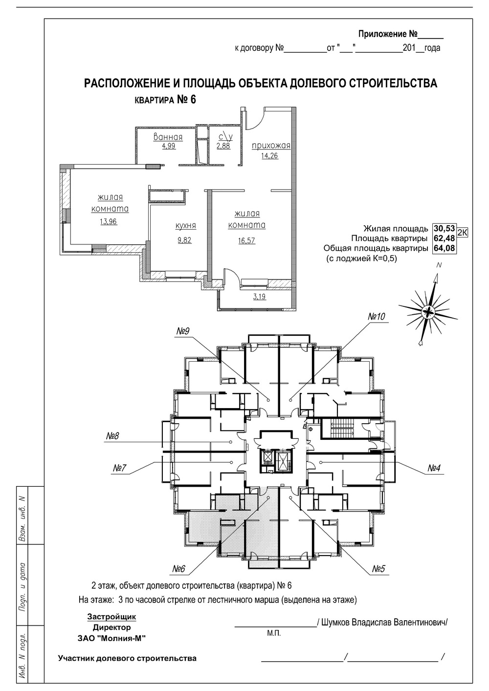
2 к
64,08 кв.м
кв №26
2 к
64,08 кв.м
кв №27
1 к
48,43 кв.м
кв №28
1 к
48,33 кв.м
кв №29
2 к
64,08 кв.м
кв №30
3 к
81,27 кв.м
кв №31
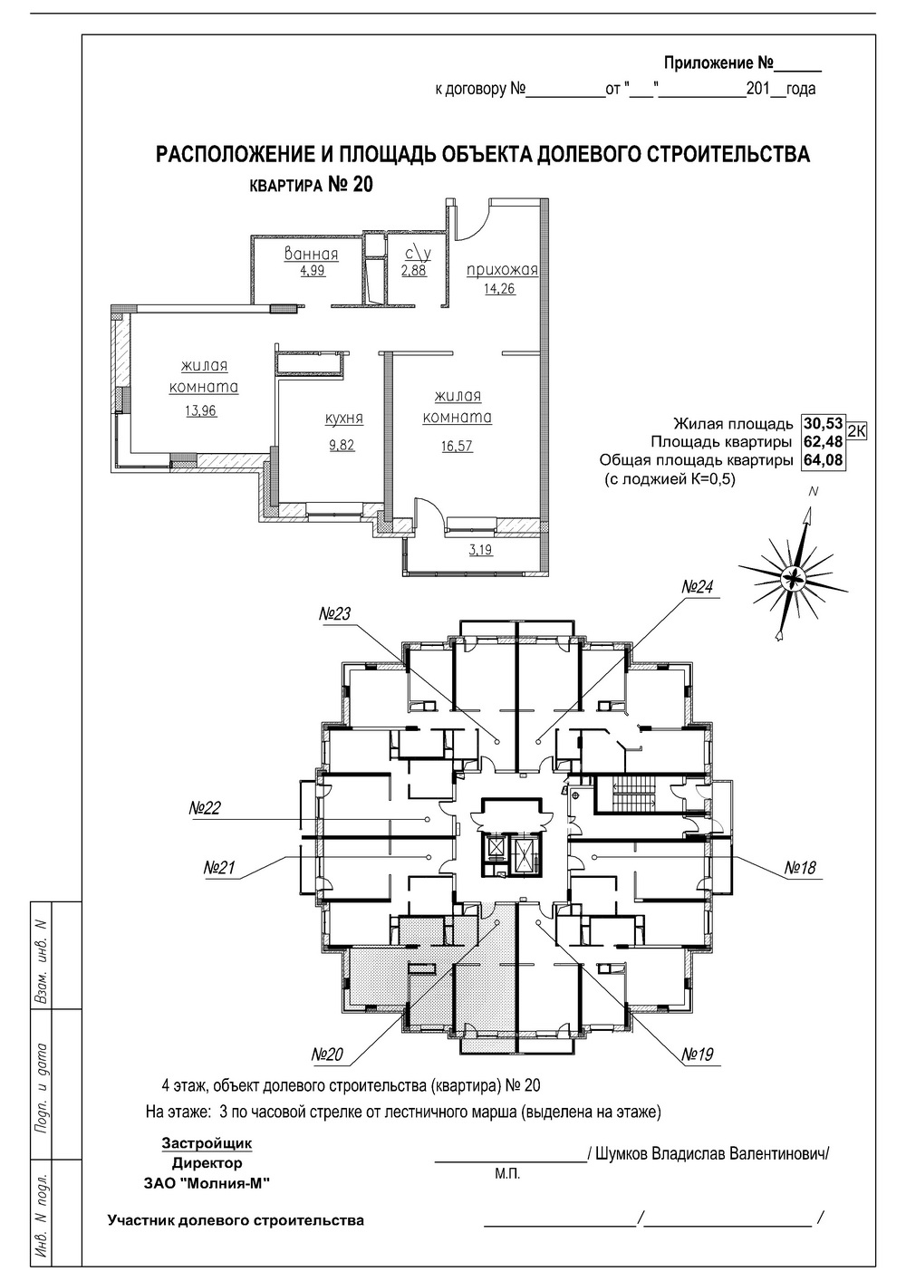
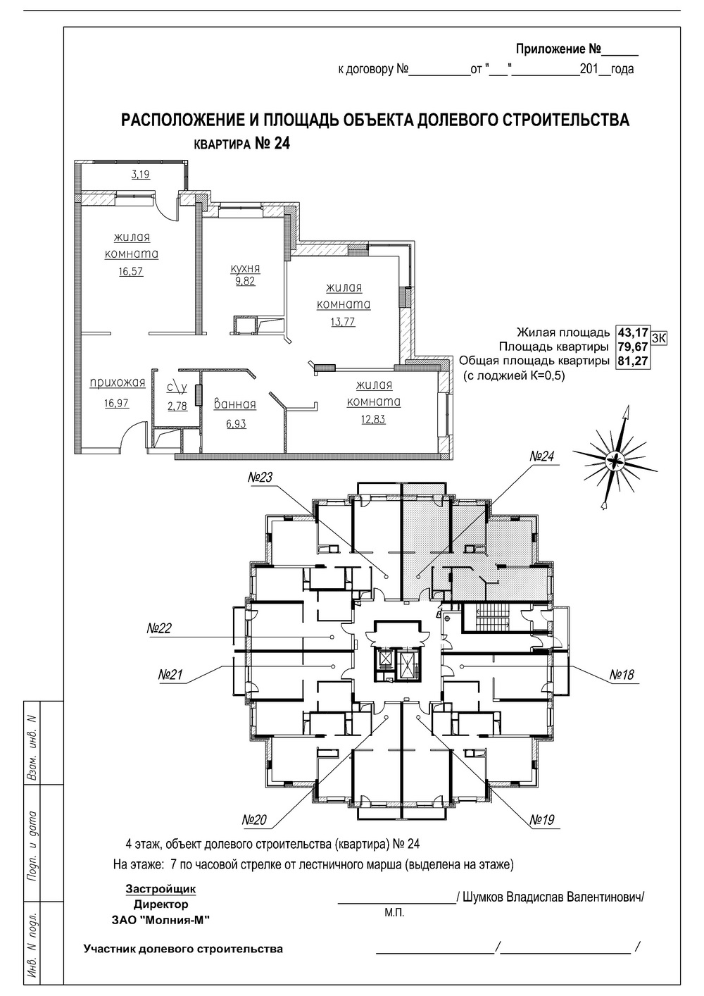
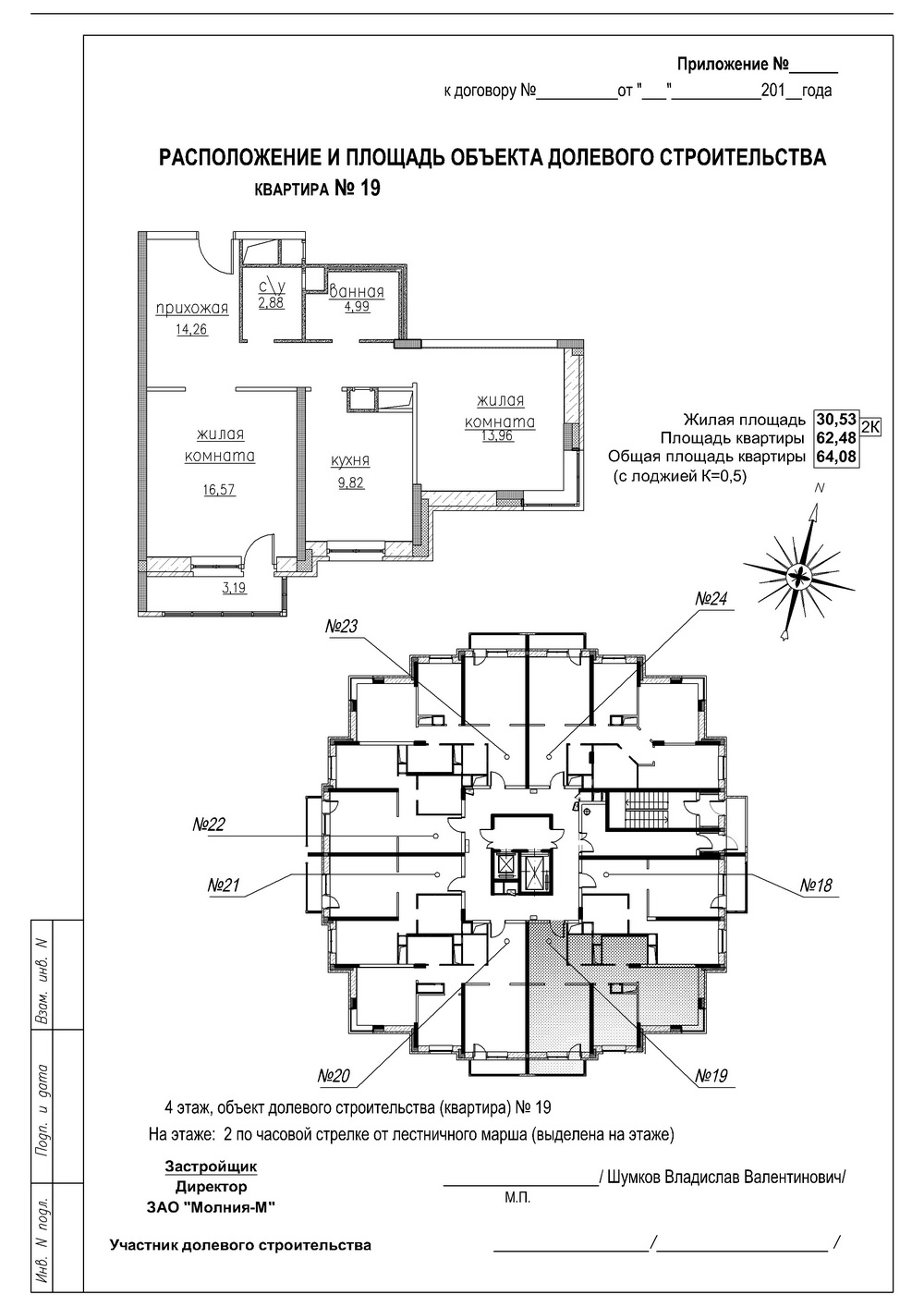
4 этаж 1 к
48,42 кв.м
кв №18
2 к
64,08 кв.м
кв №19
2 к
64,08 кв.м
кв №20
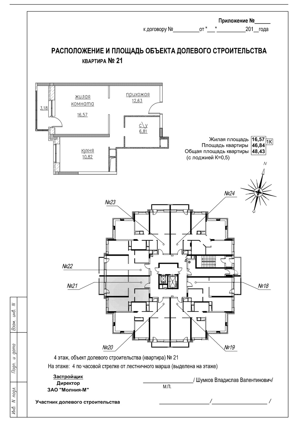
1 к
48,43 кв.м
кв №21
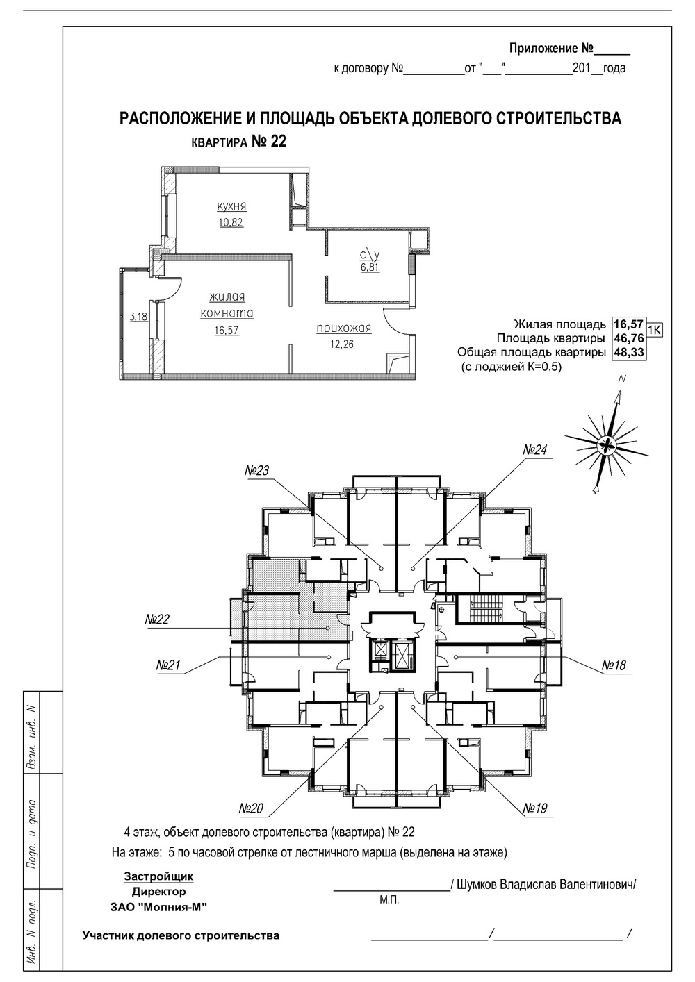
1 к
48,33 кв.м
кв №22
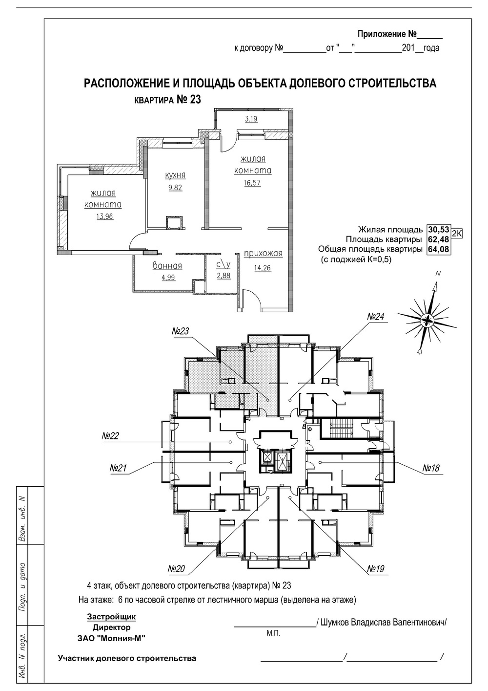
2 к
64,08 кв.м
кв №23
3 к
81,27 кв.м
кв №24
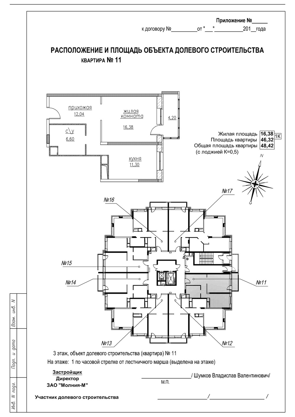
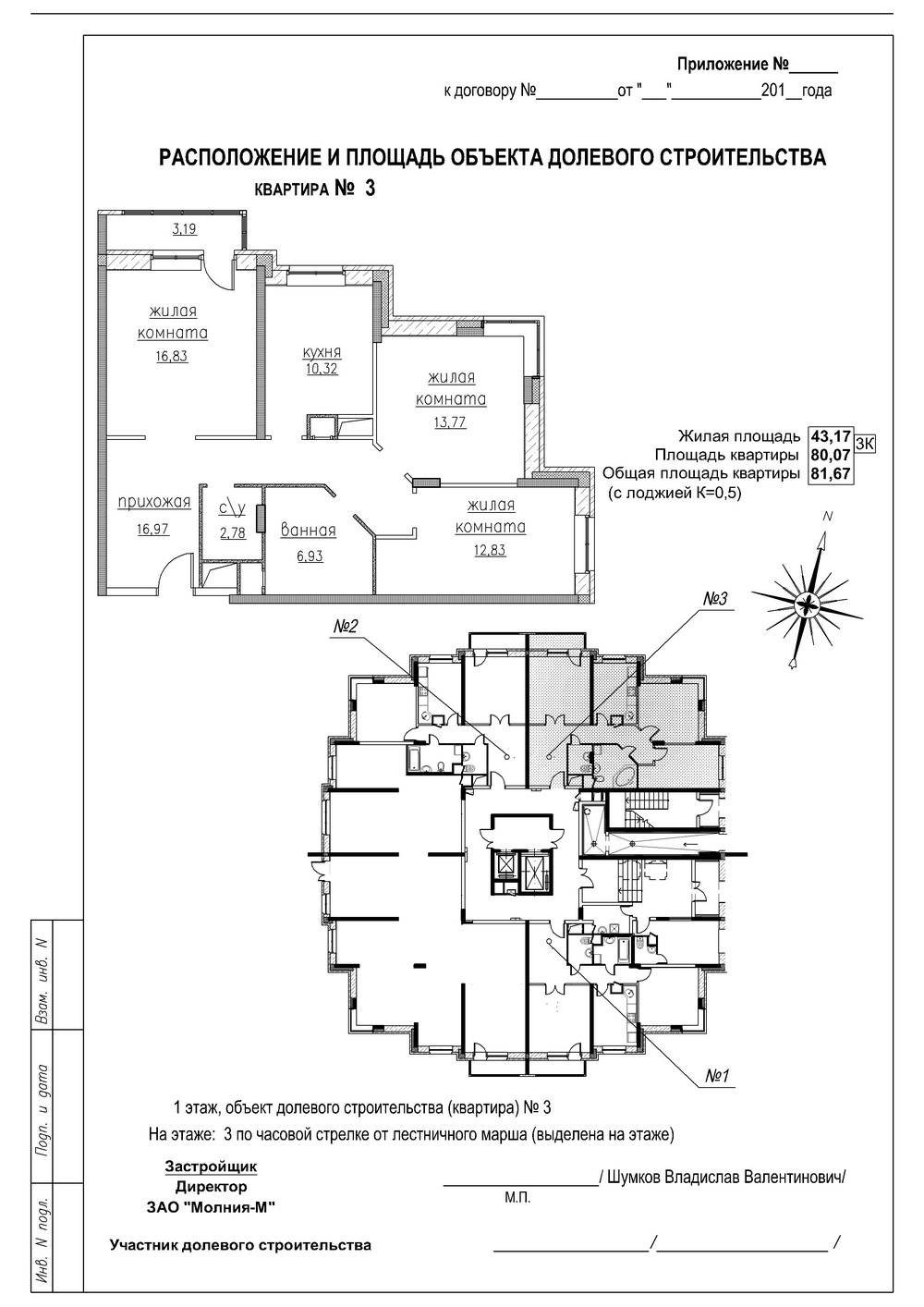
3 этаж 1 к
48,42 кв.м
кв №11
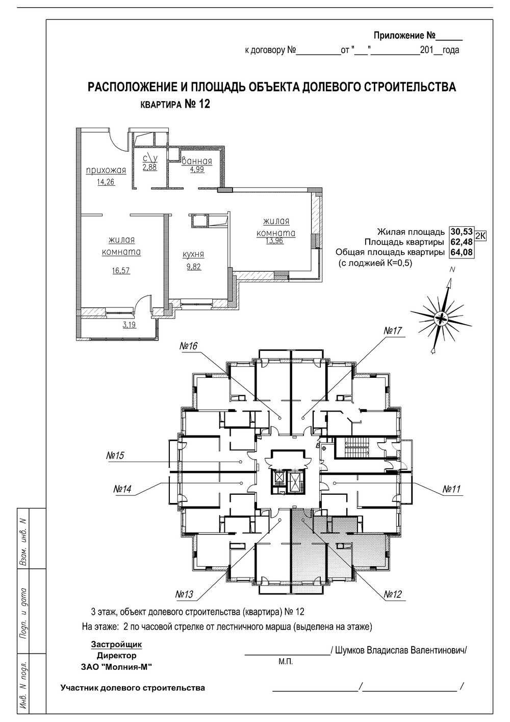
2 к
64,08 кв.м
кв №12
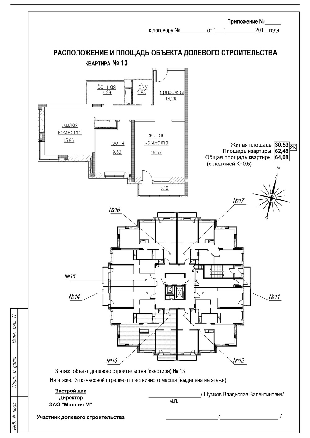
2 к
64,08 кв.м
кв №13
1 к
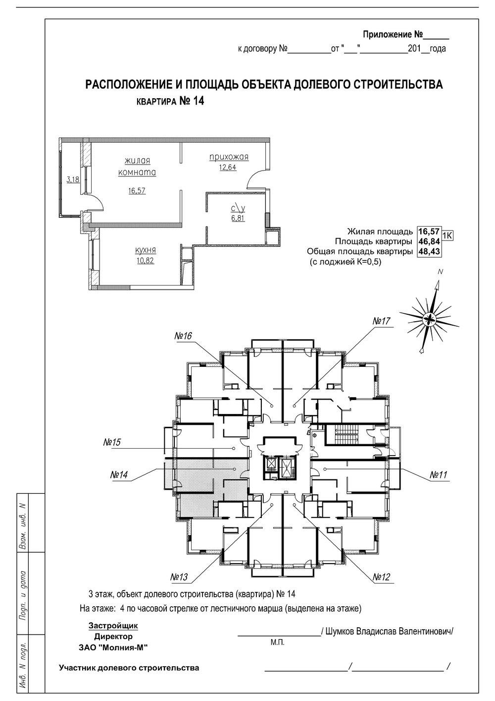
48,43 кв.м
кв №14
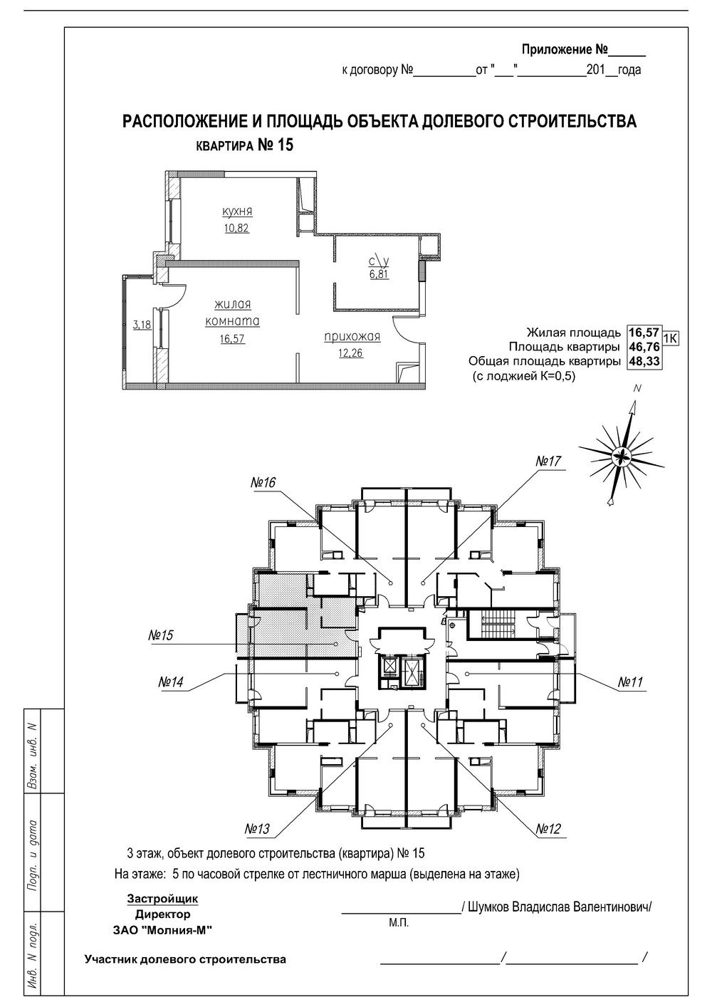
1 к
48,33 кв.м
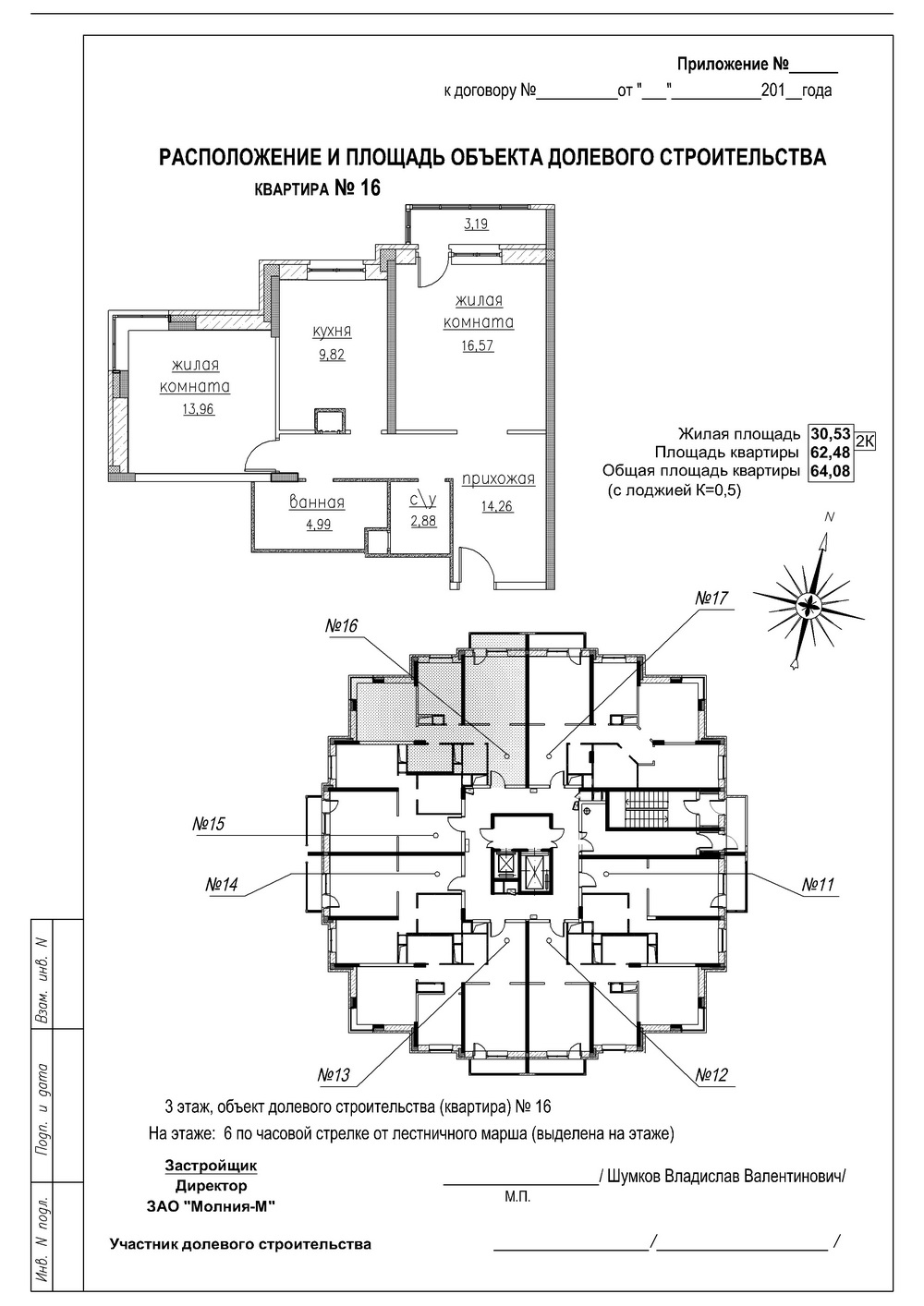
кв №15
2 к
64,08 кв.м
кв №16
3 к
81,27 кв.м
кв №17
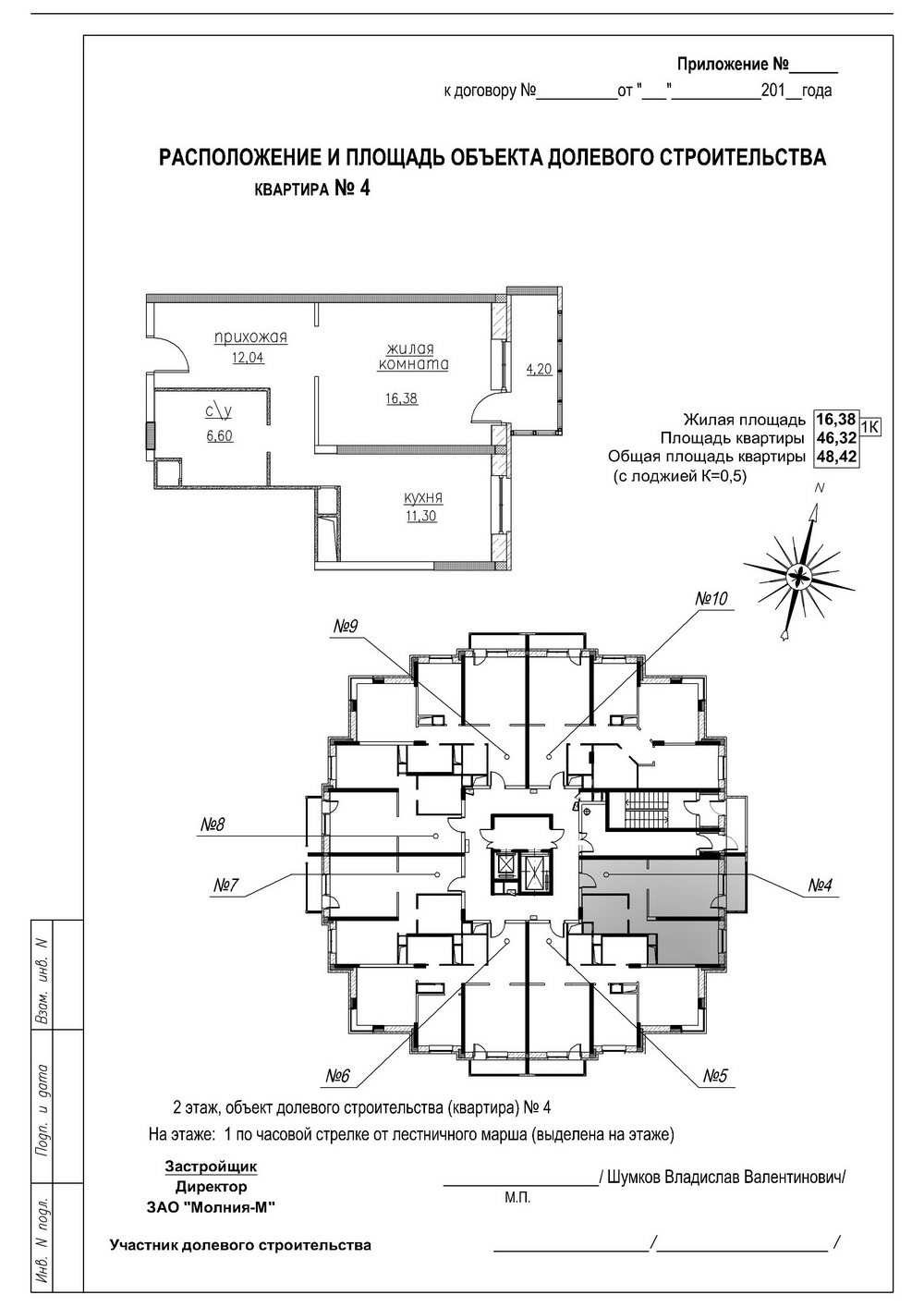
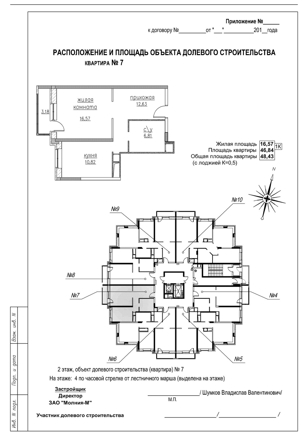
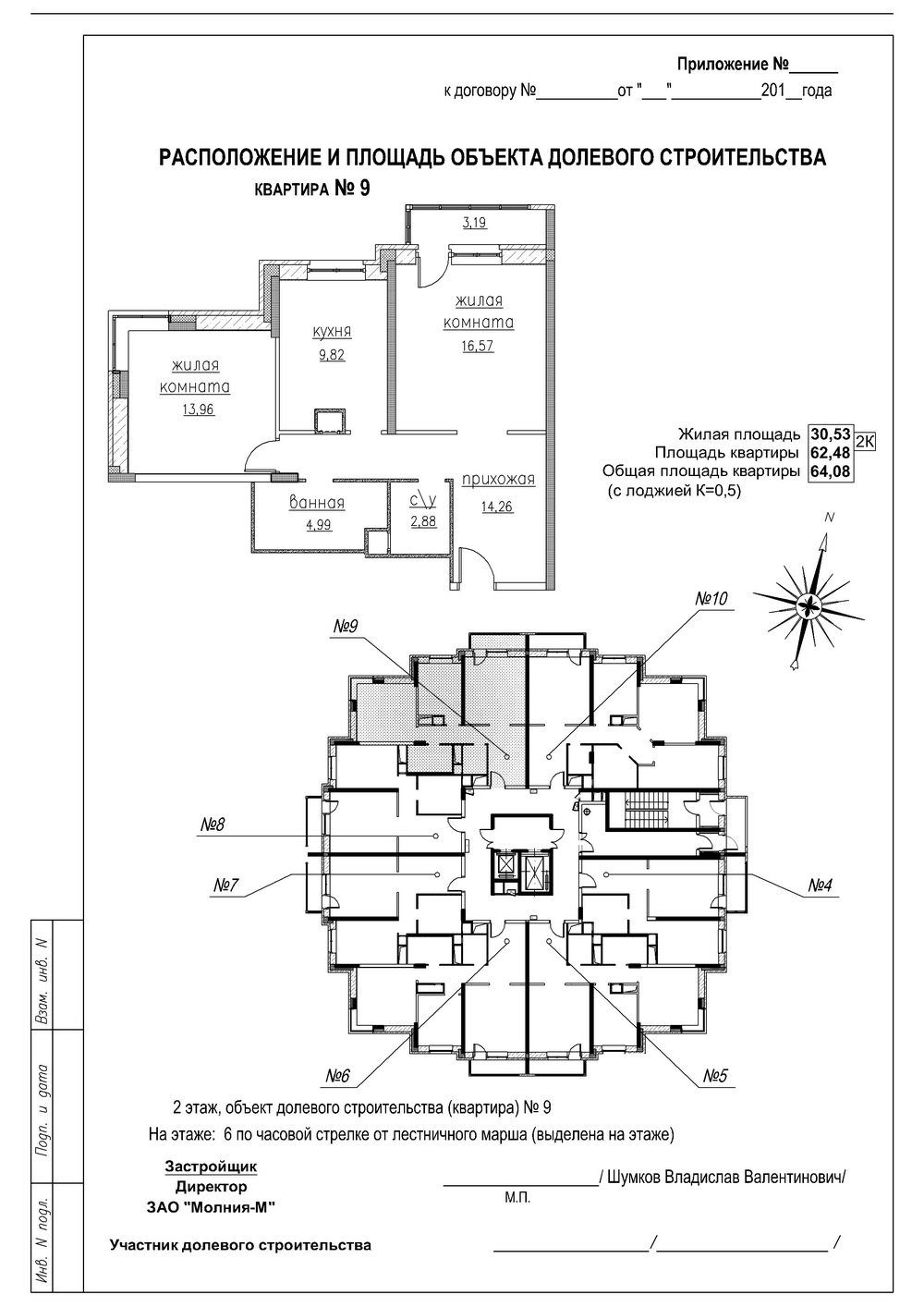
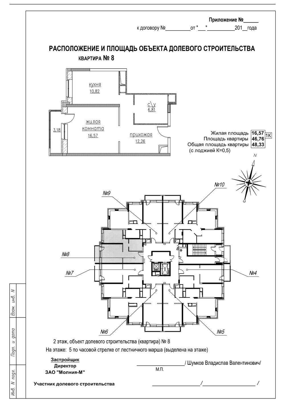
2 этаж 1 к
48,42 кв.м
кв №4
2 к
64,08 кв.м
кв №5
2 к
64,08 кв.м
кв №6
1 к
48,43 кв.м
кв №7
1 к
48,33 кв.м
кв №8
2 к
64,08 кв.м
кв №9
3 к
81,27 кв.м
кв №10
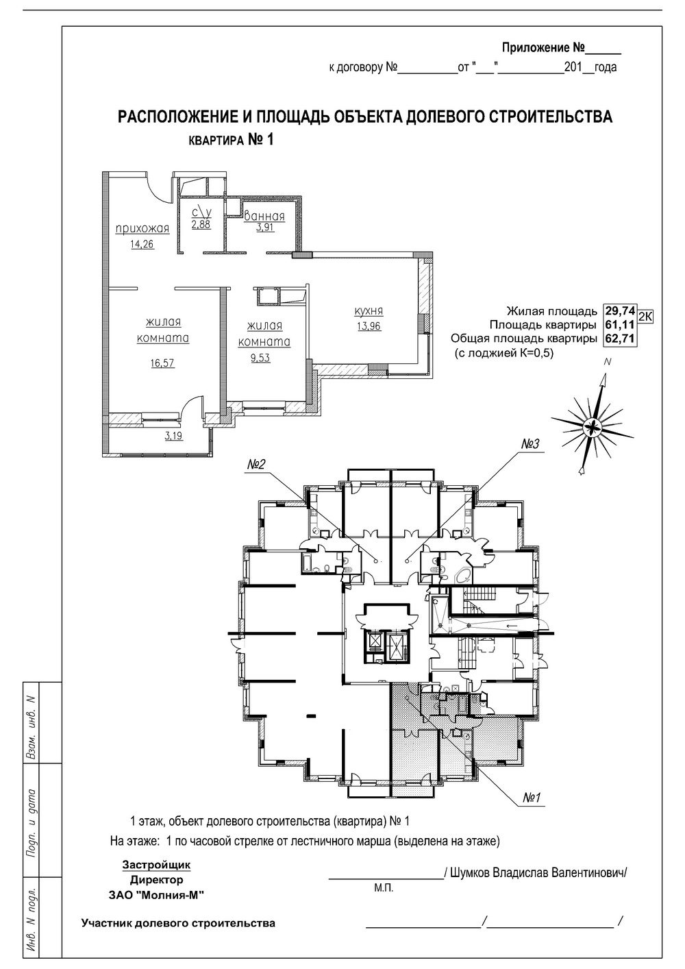
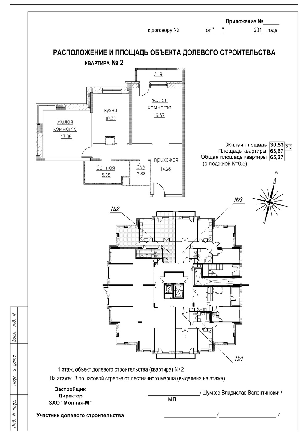
1 этаж   2 к
62,71 кв.м
кв №1

Офис 168,80 м2

2 к
65,27 кв.м
кв №2
3 к
81,67 кв.м
кв №3

 

покупателям квартир

Ипотека

Аренда торговых площадей

Продается коттедж

Московская область, Одинцовский район, хутор Рожновка.

новости компании
04.03.19
 Согласован отчет о проведении специальной оценки условий труда в ГК "Молния": ЗАО "Молния-М", ООО "СК "Молния", ООО "ПСКМ", ООО "Юрком", ООО "Отделстрой"
подробнее
05.02.17
Дорогие коллеги! Вот уже 25 лет наш дружный и сплоченый коллектив успешно и плодотворно трудится, покоряя все новые вершины успеха. В...
подробнее
Читать все новости
 
 
  о компании     услуги     жилая недвижимость     коммерческая недвижимость     покупателям     контакты  
 
  
Рейтинг@Mail.ru Rambler's Top100


статьи
  На главную страницу «Молния - М» Строительная компания ЗАО "Молния-М"
143956, Московская область, г.Балашиха, мкр-н Никольско-Архангельский, ул.9-я линия, дом 60

Телефоны: +7 (495) 525-56-56, +7 (495) 926-89-66 форма для связи
строительная лицензия №12/6 от 05.04.2005

Разработка и продвижение сайтов
Продажа квартир в готовых домах в Подмосковье от компании-застройщика ЗАО Молния-М